1-к, Ильинские Луга ЖК, 4.1 Показать на карте
Ильинское-Усово
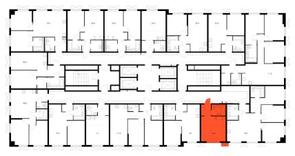
Продаётся квартира-студия площадью 23,19 кв.м на 8 этаже 9 этажного дома (Корпус 4.1, Секция 3) проекта ПИК Ильинские луга. Светлый просторный подъезд на уровне земли, функциональная планировка, большие окна, c отделкой. Жилой район ''Ильинские луга'' находится в 10 километрах от МКАД по Новорижскому шоссе, в 20 минутах на автомобиле от станций метро ''Волоколамская'', ''Тушинская'' и ''Строгино''. В будущем ближе к проекту, в 9 минутах пути на машине, откроется станция ''Ильинская'' Рублёво-Архангельской линии, которая будет соединять Арбатско-Покровскую линию и Большую кольцевую линию. Сейчас в квартале начались продажи в корпусах 3.2, 3.3, 3.4, 3.5 и 3.6. ''Ильинские луга'' — масштабный проект, в который входит девять детских садов, четыре школы и поликлиника. Он строится в престижном и экологичном районе среди лесов и памятников природы. За 5 минут от жилого квартала можно доехать до Рублёво-Успенского шоссе, а за 30 минут — до центра Москвы. До крупного торгового центра ''РИГАМОЛЛ'' всего 5 минут на автомобиле, а до ТЦ ''Твой дом'' и гипермаркета ''Глобус'' — 10 минут. В ''Ильинских лугах'' строятся только девятиэтажные дома — такая архитектура соответствует спокойной жизни за городом. В каждом дворе-парке есть места для отдыха, детские и спортивные площадки. А ещё, здесь уже открыт большой ПлейХаб ''Гравити'' — современное игровое пространство с космической тематикой, холмами, зонами для игр и отдыха жителей любого возраста. На первых этажах уже работают магазины, кафе и пекарни. Места для отдыха от ''Ильинских лугов'' тоже недалеко: 10 минут на машине — и вы в музее-усадьбе ''Архангельское''. Также рядом находится Лохин остров — памятник природы, где водятся речные черепахи, есть места для кемпинга и возможность сплавиться по реке. Артикул 1016006 (Застройщик ООО ''СЗ ''ГРАДОЛИМП'')
23 м2
8 / 9 этаж
Монолит
- Показать контакты
- Добавить в избранное
23 м2
8 / 9 этаж
Монолит
8 524 644
367 600 /м2
Новостройка,
III-2027
III-2027
