1-к, 2-й тупик, 6 Показать на карте
Мирный
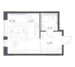
Строим кварталы для жизни с заботой о будущем. Предлагается студия комфорт-класса площадью 25,3 кв.м в корпусе 6.1 на 17-м этаже, в жилом комплексе ''Томилино Парк''.Квартиры комплекса — на выбор: могут быть как с отделкой, так и без. В случае с готовой отделкой в комнатах и прихожей уже будут обои, натяжные потолки и ламинат, а в санузлах — керамогранит на полу и керамическая плитка на стенах. Мы подведем все коммуникации и установим сантехнику.Помимо базовой отделки, вы можете дополнительно выбрать улучшенную версию. В ней используются износостойкие материалы, ударопрочные плинтуса, ламинат с фаской — все для долговечного использования.Приобрести квартиру возможно по специальным акциям от застройщика, с текущими условиями акций можно ознакомиться в блоке ''Акций''.Цена динамическая и может отличаться, уточняйте актуальность у застройщика.ЖК ''Томилино парк'' — это 19 монолитных жилых корпусов переменной этажности (от 15 до 17 этажей). Дома окружены природными объектами.В 10 мин от ЖК ''Томилино парк'' расположен Томилинский лесопарк. Это огромный заповедник площадью 3,5 тыс. га, где можно устроить пикник, прогуляться по экотропам, насладиться свежим воздухом.
25 м2
17 / 17 этаж
Монолит
- Показать контакты
- Добавить в избранное
25 м2
17 / 17 этаж
Монолит
7 051 338
278 709 /м2
Новостройка,
дом сдан
дом сдан
