1-к, Богдановский Лес ЖК, 7.4 Показать на карте
Богдановский Лес ЖК
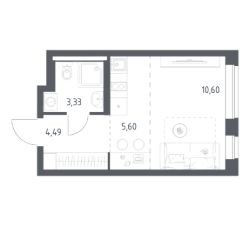
В продаже студия в корпусе 7.4 ЖК 'Богдановский Лес'. Квартира располагается на 5 этаже, общая площадь 27.3 м2.
27 м2
5 / 12 этаж
Монолит
- Показать контакты
- Добавить в избранное
27 м2
5 / 12 этаж
Монолит
6 317 140
231 397 /м2
Новостройка,
II-2026
II-2026
