Торговые площади
Мира проспект, 222 Показать на карте
Мира проспект, 222 Показать на карте
Ростокино, 5 мин
Москва
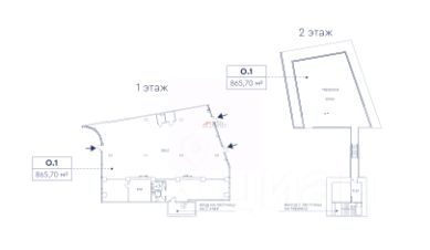
Лот 148352.Продажа торгового помещения в новом многофункциональном ЖК бизнес-класса по адресу: Москва, Проспект Мира д. 222. СВАО, район Ярославский. Ближайшая станция метро (МЦК) Ростокино 3 мин. пешком. ЖК Мираполис состоит из 4 жилых башен 33-35 этажей с подземным паркингом. И расположен рядом с ТПУ Ростокино, где сосредоточены потоки транспорта и пешеходов, пересадка с МЦД на МЦК. Ежедневный пассажиропоток через станцию МЦК Ростокино 64 тыс. человек (по данным Метростат).Торговое окружение: ТРЦ Европолис, гипермаркет Metro, автосалон Атлант-М, Антикор центр.Ввод в эксплуатацию - 2 квартал 2026г.Технические характеристики:Площадь 580 кв.м. 1 этаж. Первая линия Проспекта мира. 3 отдельных входа с разных сторон. Витражное остекление. Открытая планировка с большим залом. Состояние помещения без отделки. Высота потолков 5 м. Центральные коммуникации. Приточно-вытяжная система вентиляции, центральное кондиционирование, система пожаротушения, сигнализация. Выделенная мощность электроэнергии 0.3 Вт на 1 кв.м (с возможностью увеличения). Городской и подземный паркинг. Функциональное назначение: супермаркет, медцентр.Коммерческие условия:Стоимость объекта: 266 800 000 руб. Стоимость за 1 кв.м.: 460 000 руб.Форма собственности: продажа от застройщика.Форма продажи: по ДДУ.
580 м2
- Показать контакты
- Добавить в избранное
580 м2
266 800 000
460 000 /м2
