Офисное помещение
Золоторожский Вал, 11 ст33 Показать на карте
Золоторожский Вал, 11 ст33 Показать на карте
Римская, 5 мин
Москва
Рассрочка 0% до окончания строительстваВ реализации уникальный формат коммерческой недвижимости - офисы с террасами в составе бизнес-центра класса А STONE Римская напрямую от застройщика STONE, лидера офисного рынка.Планировки соответствуют требованиям функционального офиса: глубина помещения - до 10 м, высота потолков - 3,65 м, шаг колонн - 8,4 х 8,4 м. Окна в пол обеспечат оптимальный уровень инсоляции и предусматривают возможность естественного проветривания.Видовые террасы и благоустроенная территория бизнес-центра предлагают не только удобные рабочие пространства, но и зоны для отдыха, где сотрудники смогут наслаждаться перерывами на свежем воздухе.Транспортная доступность:- 3 мин. от ст. м. ''Римская'' и ''Площадь Ильича''- 1 ст. м. до Садового кольца- 3 мин. до ТПУ ''Серп и Молот''- 900 м до ТТКСтроящийся пересадочный хаб обеспечит прямой доступ как в районы Подмосковья, так и в центр: 29 мин. - до Москва-Сити по МЦД-4 без пересадок, 20 мин. - до ст. м. ''Белорусская''.Архитектурную концепцию бизнес-центра разрабатывает бюро WALL. STONE Римская будет состоять из двух офисных башен, объединенных двухуровневым стилобатом, где разместится необходимая инфраструктура. Среди запланированных объектов - кафе и рестораны, столовая с открытым доступом, фитнес-студия, аптеки, банкоматы.STONE Римская реализуется в концепции ''Здоровое строительство'' - здания, которые способствуют физическому, ментальному и социальному благополучию его резидентов. В числе ключевых характеристик концепции, позитивно влияющих на продуктивность сотрудников - уровень инсоляции, количество и качество воздуха, а также элементы биофильного дизайна.STONE - девелопер коммерческой и жилой недвижимости классов бизнес и премиум в Москве с 19-летним опытом. С 2022 года занимает лидирующую позицию на офисном рынке (рейтинг РБК). Сегодня в портфеле девелопера представлено 3 млн кв. м построенных, строящихся и проектируемых объектов, из которых более 1 млн кв. м находятся в стадии строительства.Компания имеет самый масштабный проектный портфель офисной недвижимости класса А на московском рынке (данные NF Group) и возглавляет топ-6 устойчивых девелоперов согласно исследованию F Research от Forbes. В настоящий момент девелопером представлено 16 бизнес-центров класса А, а также 3 жилых комплекса бизнес+ класса.ID.19790
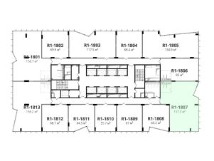
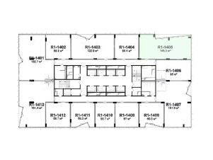
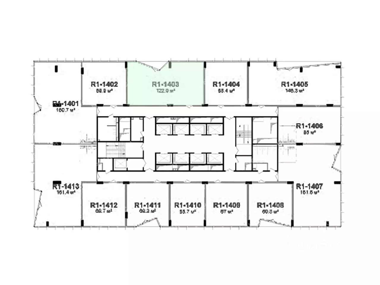
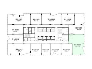
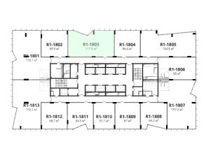
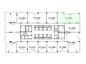
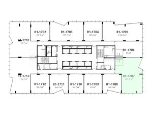
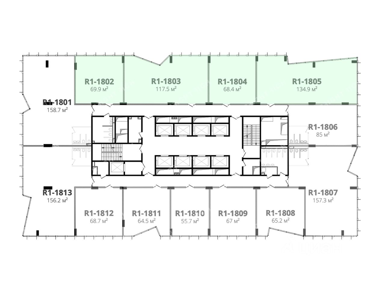
159 м2
- Показать контакты
- Добавить в избранное
159 м2
80 278 800
503 000 /м2
