Таунхаус, Братьев Гримм Показать на карте
Москва
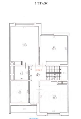
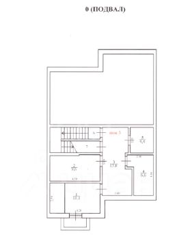
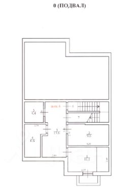
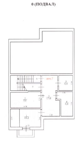
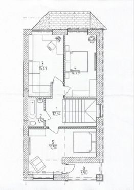
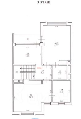
Приглашаем вас стать владельцем уютного таун-хауса премиум-класса известного московского дизайнера интерьеров в живописном КП Бремен закрытого типа Общая площадь жилья составляет 250 квадратных метров, распределенных на три просторных этажа с высотой потолков 2,8 метра, создавая ощущение простора и свободы и плюс подвал. Планировка таун-хауса продуманна до мелочей:- Первый этаж оснащен кухней-гостиной, отдельной ванной комнатой и выходом на открытую террасу,с установленным тапчаном, идеально подходящую для вечернего отдыха с друзьями и семьей возле мангала и зоной барбекю.- Второй этаж включает в себя две светлые спальни и ванную комнату( в бетоне) отделка под ваш вкус и постирочное помещение, обеспечивающие комфортный отдых каждому жильцу.- Третий этаж отведён под семейную зону развлечений (до 3,2 метров высоты потолка). Здесь легко представить вечера за игрой в бильярд или просмотром фильмов в кругу близких. В подвале установлен дополнительный холодильник и винный погеб. Стены выполнены из прочных материалов: каркас и фундамент монолитные, перекрытие железобетонное, стены и внутренние перегородки из качественных пеноблоков, обеспечивая тепло зимой и прохладу летом. Таунхаус располагается на охраняемой территории с современными системами пропуска , круглосуточной охраной и видеонаблюдением. Гостевые парковки,а также парковка для своих двух автомобилей. Четыре КПП обеспечивают максимальный уровень комфорта и безопасности проживания.Участок крайний (не окно в окно),увеличенный за счет того, что крайний. Рядом обустроено пространство для прогулок вдоль реки Незнайка, благоустроенная набережная приглашает заниматься спортом и отдыхать всей семьёй.Оборудованная детская площадка и площадка для выгула и тренировки собак. Семьи с детьми оценят близость инфраструктуры посёлка Марьино: рядом находятся школы 1392, 1139 и NEшкола,Smart Sсhool, студия балета,современный детский сад, супермаркет Пятёрочка, ВкусВилл, Магнит, Фасоль, Сбербанк, почтовое отделение и новое медицинское учреждение.Дом подключён ко всем необходимым инженерным коммуникациям, включая природный газ.Установлено 2 котла, газовый и электрический ( как запасной), система водоподготовки. Преимущества покупки именно этого дома: свободная юридически чистая сделка, оформление осуществляется одним взрослым собственником, показ возможен по предварительному согласованию.Станьте обладателем комфортного семейного пространства и наслаждайтесь каждым днём в гармонии с природой и удобствами современного поселка.Позвоните нам уже сегодня и узнайте больше деталей об этом уникальном предложении недвижимости!
250 м2
3 этажа
- Показать контакты
- Добавить в избранное
250 м2
3 этажа
33 000 000
132 000 /м2
