Дом, Анкудиново кп, 58 ст1 Показать на карте
Москва
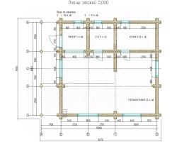
Жилой дом 140 м² с участком 6.7 соток в Новой Москве (КП Анкудиново)Предлагается к продаже жилой дом, расположенный в Марушкинском поселении (г. Москва). Локация сочетает спокойную загородную среду и удобную транспортную доступность — выезд на Киевское, Боровское и Минское шоссе.Дом подходит для постоянного проживания: выполнено утепление, подключены основные коммуникации, продуманная планировка.О домеКаркасный дом площадью 140 м², построен с учётом круглогодичной эксплуатации.— Утепление стен и пола: минеральная вата 200 мм— Дополнительное утепление основания (пеноплекс)— Межэтажная и межкомнатная шумоизоляция— Потолки: вагонка + гипсокартонКонструктив обеспечивает стабильный температурный режим и комфортное проживание в течение всего года.Планировочное решениеФункциональная планировка, ориентированная на семью:1 этаж:— Кухня с установленной мебелью и техникой(духовой шкаф, холодильник, посудомоечная машина)— Гостиная— Санузел с душевой кабиной— Стиральная машина2 этаж:— 3 изолированные комнаты— Гардеробная (кладовая)Санузлы предусмотрены на каждом этаже.Коммуникации— Электроснабжение: 15 кВт, 3 фазы— Водоснабжение: колодец— Канализация: септик (приёмный и распределительный колодцы)— Газ: установлен газгольдер, ведётся оформление подключения к магистралиВсе системы функционируют и обеспечивают базовый уровень комфорта.Земельный участокПлощадь — 6,7 сотки, участок огорожен.— Подъездная дорога — щебёночное покрытие— Организовано парковочное пространство на участке и перед домом— Удобный заездЛокация и окружение — Москва, Марушкинское поселение— До остановки общественного транспорта — около 10 минут пешкомВ окружении:— Прогулочные зоны, парк, пруд— Детские и спортивные площадки— Действующий храмШколы и детские сады расположены в Кокошкино и Марушкино.Посёлок находится в стадии развития: выполнены дороги, организуется освещение.Документы и сделка— Один взрослый собственник— Объект поставлен на кадастровый учёт (дом и участок)— Адрес присвоен (г. Москва)— Документы готовы к сделкеОбъект подойдёт для тех, кто рассматривает загородный формат проживания в границах Москвы с понятной логистикой и базовой инфраструктурой.Готова предоставить дополнительную информацию и организовать показ.
140 м2
2 этажа
- Показать контакты
- Добавить в избранное
140 м2
2 этажа
17 500 000
125 000 /м2
