Коттедж, проезд Прудовый (Зеленая Горка СНТ), 34 ст1 Показать на карте
Москва
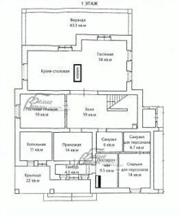
Продается ухоженный современный дом на участке 8 соток. Дом находится в Москве, рядом с метро Говорово. Дом построен по индивидуальному проекту в 2015 году в классическом стиле и сочетает в себе комфорт, красоту и элегантность. Этот дом - это прекрасное сочетание тихой загородной жизни в окружении инфраструктуры мегаполиса. Дом продается полностью с мебелью, оборудованием и бытовой техникой топовых европейских брендов. В каждой комнате установлен кондиционер.Планировка дома:1 этаж: гостиная, кухня-столовая, 2 спальни, с/у 2 этаж: 4 спальни, с/у, холл с выходом на балкон.3 этаж: большая просторная мансарда. Конструктив дома:фундамент глубиной 3м.70см., стены (40см.) газоблоки + утеплитель +декоративный кирпич и штукатурка, крыша - металлочерепица с бронепленкой.Электричество - 30кВтВодоснабжение - собственная скважина 149 метров с системой полной фильтрации дает возможность пить идеально чистую и вкусную воду.Газоснабжение центральное.Канализация - септик ТОПАС на 8-10 человек. Всем системам жизнеобеспечения несколько месяцев назад сделано техобслуживание. Отдельно расположены:- отапливаемый гараж на 2 автомобиля с квартирой для персонала на втором этаже (две комнаты, кухня, санузел). - отапливаемая беседка из бруса с зоной для барбекю и уютным залом для приема гостей. На участке сделан ландшафтный дизайн: высажен газон, туи, лесные и декоративные деревья, вымощены дорожки, установлено освещение. Двор частично крытый с арочным высоким навесом и зоной отдыха. По периметру участка установлено видеонаблюдение с выводом в дом. Продуманная планировка дома с легкостью разместит большую семью, а транспортная доступность и развитая инфраструктура сделает комфортным круглогодичное проживание. Прописка московская. Месторасположение: СНТ ''Зеленая Горка'' - тихий охраняемый поселок с хорошими соседями. В шаговой доступности м. Говорово. Круглогодичный асфальтированный подъезд, зимой чистят дороги. удобная транспортная развязка, недалеко от дома автобусные остановки, два парка- Парк 50-летия Октября, Центральный парк с большим Солнцевским прудом, Говоровский лес, Мещерский лес. Инфраструктура: - школы и детские сады рядом (1000, 1002 1347, 1542), - частные и английские школы и детские сады, - поликлиники, продуктовые магазины, парикмахерские, аптеки, спортивные объекты, банки, кафе и рестораны и многое другое.Оперативный показ и быстрый выход на сделку. Один собственник. Документы все готовы. Торг.
500 м2
2 этажа
Кирпич
- Показать контакты
- Добавить в избранное
500 м2
2 этажа
Кирпич
57 000 000
114 000 /м2
