Москва
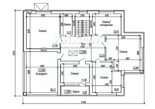
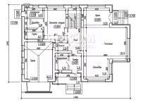
Кирпичный дом с чистовой отделкой на участке 10 соток в КП Романтика. Поселок расположен в 25 км МКАД по Калужскому шоссе. Краснопахорский район, Троицкий округ. Ключевые особенности: высокое место расположения, высокие потолки на первом и втором этаже, центральные коммуникации. Дом построен полностью из кирпича (керамический блок) и имеет продуманную планировку. В строительстве использовались качественные, современные материалы. Фундамент —ленточный, перекрытия — монолитные, окна — 3-х камерные стеклопакеты Rehau, кровля —металлочерепица. Наружная отделка —облицовочный кирпич. Внутренняя отделка: сделаны перегородки из кирпича, установлена монолитная лестница. Коммуникации, в том числе магистральный газ введены в дом, стены оштукатурены. Коммуникации центральные: электричество 15 кВт, водоснабжение, канализация. Планировка: 1 этаж: прихожая, гардеробная, кухня-столовая, гостиная, спальня, с/у, котельная-постирочная, 2 этаж: холл, мастер-спальня с c/у и балконом, спальня с балконом, 2 спальни большой c/у, Угловой участок 10 соток правильной формы, огорожен забором. Расположен в высокой точке поселка. КП ''Романтика'' расположен в деревне Романцево на Калужском шоссе, с хорошей транспортной доступностью. Поселок окружен с двух сторон лесом. В поселке есть детская площадка, магазин, асфальтированные дороги, уличное освещение, собственная система охраны, видеонаблюдение, газифицирован. В пешей доступности зоопарк ''Планета обезьян'' ''Экзотик Зоо'', кафе, зона семейного отдыха. Москино, кинопарк. Рестораны ''Калужская застава'', ''Моремания''. Внешняя инфраструктура:П. Красное, п, Красная Пахра, г. Троицк. - Школы, детские сады и поликлиники, торговые центры, спортивные клубы, Школа ''Ника'', санаторий ''Амакс'', спортивный парк ''Красная Пахра''. Хорошая транспортная доступность.15 мин. остановка общественного транспорта. Рядом расположены поселки ''Бавария-клаб'', ''Бавария-ленд'', ''Романцево'', и др.
265 м2
2 этажа
Кирпич
- Показать контакты
- Добавить в избранное
265 м2
2 этажа
Кирпич
35 000 000
132 075 /м2
