3-к, Вильгельма Пика, 1 корп. 1 Показать на карте
Улица Сергея Эйзенштейна, 9 мин
Москва
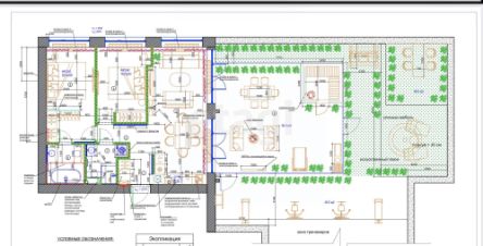
Район: Ростокино Метро: Ботанический сад, ВДНХ Адрес: ул. Вильгельма Пика 1к1 ЖК ''Режиссёр'' Материал дома: монолитный Этаж/этажность: 4/29 Потолок: 3м. Планировка: 3 квартира общей площадью 76.2 кв.м., жилая 43 кв.м., спальни 12.2+15.1 кв.м., гостиная 15.7 кв.м., кухня 11.8 кв.м., сан. узлы 3.9+4.0+1.2 кв.м., лоджия 2.8 кв.м. О квартире: Эксклюзивное предложение! В ЖК Режиссёр продается 3 комнатная квартира. Отличное планировочное решение! Полноценные 74.8 метра + застекленная лоджия 2.8! Пожалуй, начнём! Войдя в квартиру мы попадаем в холл (10.9м) в котором отлично впишется зона для хранения одежды, пуф и зеркало. Далее Мы сразу попадаем в кухню-гостиную (27.5м) с застекленной лоджией (2.8м) и видом на двор с ландшафтным дизайном и детской площадкой. За счёт такого не малого метража, вы с легкостью сделаете зонирование, тем самым получите полноценную кухню, обеденную зону, и зону отдыха! Так же в гостиной есть постирочная (1.2м) которую можно реализовать гостевой сан. узел. Вторая не маловажная часть квартиры, это её спальни! В квартире 2 изолированные мастер спальни, каждая из них имеет свой сан узел. Спальня 1 (12.2м) с сан. узлом (3.9м), спальня с видом во двор, как в кухне и гостиной. Спальня 2 (15.1м) с сан. узлом (4.0м), окна которой выходят на сторону здания управляющей компании. Застройщик выполнил условное обозначение всех помещений, тем самым избавил вас от ненужного демонтажа. А так же, это отличная возможность подвигать перегородки, на свой вкус. Если вам понравились фото, вы прочитали описание и хотите посмотреть наше прекрасное предложение вживую! Не откладывайте это на завтра, звоните! Мы покажем квартиру в удобное для вас время! И конечно! На квартире нет никаких обременений! И мы показываем полную стоимость в ДКП! Звоните! Записывайтесь! Смотрите! Ключи у Менеджера на руках! В конце хотелось бы сказать, о ЖК и его территории: Лобби с большим количеством приватных мест как с диванами, так и с креслами, где вы можете встретиться с друзьями, коллегами и др. Множество различных живых растений создают эффект ВАУ! Коворкинг зона с множеством рабочих мест и небольшой кухней. Внутренняя территория с детской площадкой, различными растениями и зоной отдыха для взрослых. Инфраструктура: В пешей доступности 5-10 минут от ЖК ''Режиссёр'' есть все необходимое, магазины, аптеки, банкоматы, кафе и кофейни. Так же в непосредственной близости есть поликлиники, детские сады и школы, парки и многое другое. Транспортная доступность: До метро и МЦК Ботанический сад 1.1 км, метро ВДНХ 2 км. В транспортной доступности 2 минут выезд на МСД и пр-кт Мира, 15-20 минут до центра города на машине. Условия продажи: Прямая Продажа. Без обременений. Полная стоимость в договоре. Один взрослый собственник. Спешите купить! Звоните!
76 м2
4 / 29 этаж
Монолит
- Показать контакты
- Добавить в избранное
76 м2
4 / 29 этаж
Монолит
40 000 000
524 934 /м2
Новостройка,
дом сдан
дом сдан
