3-к, Невельского проезд, 6 корп. 2 Показать на карте
Москва
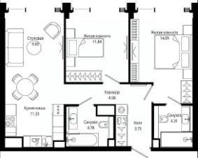
Вашему вниманию предлагается трехкомнатная квартира в ЖК Символ! С лучшей планировкой во всем ЖК.В квартире возведены стены согласно дизайн проекту.Планировка предусматривает:Три изолированные спальни, гостиная, кухня, два санузла и две гардеробныеСпальни спроектированы по принципу комната в комнате, что позволило добиться идеальной шумоизоляции.Более детально о проделанных черновых работах: 1. Отопление - полностью заменена вся разводка системы отопления на бесшовные трубы, радиаторы изготовлены на заказ, трасса системы отопления проложена к каждому радиаторы и подключена через коллектор системы отопления. 2. Вода - система водоснабжения разведена по всем мокрым точкам через коллектор водоснабжения. Применялись только высококачественные материалы. 3. Электричество - система электроснабжения также разведена по всей квартире, в достаточном количестве имеются осветительные точки и точки под розетки. На каждую комнату идет своя ветка питания, свет объединён по группам. Так же подготовлены трассы для систем кондиционирования. 4. Приточная-вытяжная вентиляция разведена на кухню, гардероб в коридор и в санузлы, для непрерывной циркуляции воздуха. 5 Пол - по всему периметру квартиры уложена шумоизоляция и на нее уже залита стяжка пола. 6. Стены - стены возведены по каркасной системе обшиты гипсокартоном и проложена шумоизоляция SoundGuard ЭкоАкустик 80 (в спальнях добавлен шумоизоляционный материал) кроме двух спален, в всей квартире стены выровнены и отштукатурены. Потолки в хозяйской спальне изолирован звукоизоляционным материалом ИзоКовер. Все стены отвязаны от несущих конструкций через виброразвязку, для уменьшение передачи шумов на стены. 7. В санузлах положена плитка и установлены ванна и душевая кабина.Отгороженная территория со своим внутренним двором, круглосуточное видеонаблюдение, подземный паркинг, шлагбаум. Идеальная транспортная развязка, очень удобный выезд на третье транспортное и садовое кольцо, 30 минут пешком до Кремля и парка Зарядье.Квартал бизнес-класса СИМВОЛ это городское пространство нового поколения в историческом районе Лефортово, на границе ЦАО, в 2 км от Садового кольца. Бионическая архитектура СИМВОЛА превратила Лефортово в суперсовременное и модное пространство. Из окон, с балконов и террас просторных квартир СИМВОЛА открываются отличные виды на город и новый парк ''Зеленая река'', ''протекающий'' через все кварталы комплекса на 2 км. А еще здесь будет все, что нужно для комфортной жизни: детсады, Бауманский лицей, кафе, рестораны, супермаркеты, магазины, спортивно-оздоровительные и медицинские центры и многое другое прямо в вашем доме или рядом с ним.Оперативный показ по предварительной записи!Указанная цена, может быть скорректирована в ходе конструктивного диалога с заинтересованным покупателем!С21 Premium Property - участник ассоциации AREAАрт. 44388338
106 м2
10 / 17 этаж
Монолит
- Показать контакты
- Добавить в избранное
106 м2
10 / 17 этаж
Монолит
46 000 000
433 962 /м2
