1-к квартира Показать на карте
Москва
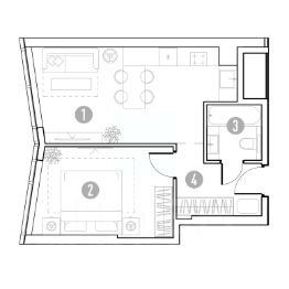
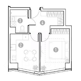
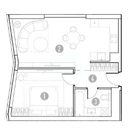
Объект забронирован клиентом!В продаже — однокомнатная квартира с чистовой отделкой, общей площадью 46,95 кв. м. Квартира расположена на втором этаже восьмиэтажного корпуса Балансд в квартале В16 нового района СберСити, который строит Сбер.Архитектуру квартала В16 создало итальянское бюро ARCHEA middle east: каждый дом узнаваем, но вместе они складываются в спокойный, цельный ансамбль. В облицовке сочетаются тёплые оттенки кирпича и металла, за счёт игры фактур фасады выглядят живыми и меняются в разное время дня. Строгая геометрия поддерживает ритм города, а мягкая природная палитра помогает чувствовать себя дома, а не в деловом квартале.Дом возводится по технологии монолитного строительства. Все квартиры передаются с чистовой отделкой. Отделка предлагается на выбор в трёх стилях — Новая классика, Скандинавский и Средиземноморский — в нескольких цветовых решениях.В квартирах предустановлена система ''умный дом'', связывающая квартиру, дом и прилегающую территорию. Жильцы могут регулировать климат и освещение голосом или со смартфона, предусмотрена защита от протечек. Высота потолков — от 2,9 м.Квартал состоит из девяти домов средней этажности — от 7 до 10 этажей. Корпуса формируют большой внутренний двор площадью два гектара. Во дворе предусмотрены зоны для разных сценариев: просторные площадки для детей, пространства для активного досуга и спорта, тихие места для отдыха и спокойного времени, а также удобные рабочие места под открытым небом. Здесь легко найти своё — для жизни, здоровья и занятий тем, что действительно нравится.В доме предусмотрены: уютное лобби с зоной ожидания, лапомойка, санузел, помещение для хранения колясок и велосипедов, подземный паркинг.СберСити — это новый жилой и деловой район на западе Москвы, в одном из самых экологически чистых и престижных мест столицы. Это первая в России и крупнейшая в мире инновационная городская среда, созданная по международным стандартам зелёного проектирования. Здесь внедряются решения в области энергоснабжения, вакуумного мусороудаления, тестирования зелёных технологий, а в дальнейшем — системы искусственного интеллекта для управления домами и городской инфраструктурой.Строительство проекта началось в 2021 году, заселение первых корпусов — с лета 2024-го. Общая площадь территории — 461 га, из них более 2,5 млн кв. м жилья и около 833 тыс. кв. м офисных пространств. Будет построено 7 школ, 13 детских садов и 2 поликлиники. В СберСити будут жить 65 тыс. человек и работать 70 тыс. Развитием территории занимается АО ''Рублёво-Архангельское'', входящее в группу Сбер.СберСити — место, где хочется жить, работать и растить детей.Переезжайте в СберСити!
46 м2
2 / 10 этаж
Кирпич - монолит
- Показать контакты
- Добавить в избранное
46 м2
2 / 10 этаж
Кирпич - монолит
25 888 230
551 400 /м2
Новостройка,
IV-2028
IV-2028
