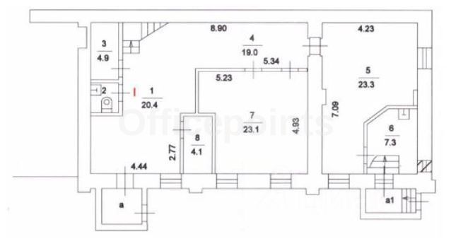
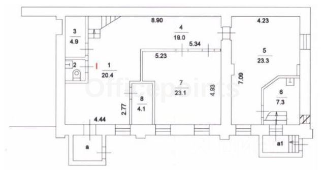
Сдается в аренду офисное помещение на 1 этаже в БЦ Ивановская горка, В класса, который находится по адресу: Подкопаевский пер., д. 4, стр. 3.
Шаговая доступность от м. Китай-город, Чкаловская. Удобный выезд на Садовое кольцо.
В помещении выполнена стандартная отделка, смешанная планировка. Центральная система кондиционирования и приточно-вытяжная система вентиляции. В наличии подземная парковка.
Арендные каникулы и ставка подлежат обсуждению.
Звоните прямо сейчас и мы согласуем точное время показа в удобное для Вас время, отправим план помещения и ответим на все ключевые вопросы!












