Если цена в объявлении изменится, мы сразу сообщим вам об этом на электронную почту.
Нажимая «Подписаться», вы соглашаетесь с правилами.
продам дом, 3-я (Толстопальцево-4 СНТ), 1113 500 000 ₽
26 фев
Дата публикации объявления
Обн. вчера
Дата обновления объявления
101 504 ₽/м²
Чистая продажа
Термин "Чистая продажа" означает, что в квартире никто не прописан или
есть куда выписаться и вывезти вещи. Это лучший вариант для покупателя.
Вероятность срыва сделки минимальна.
Этажей1
Площадь участка5,2 соток
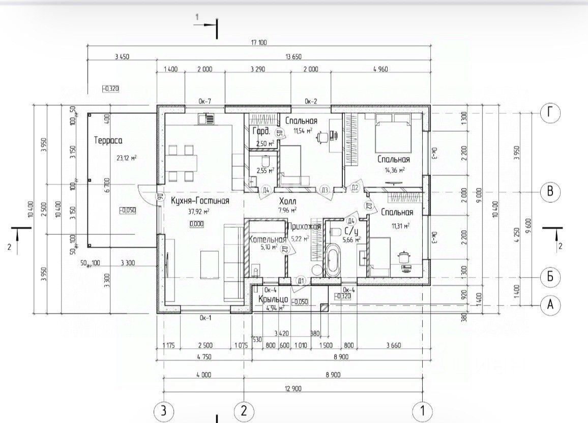
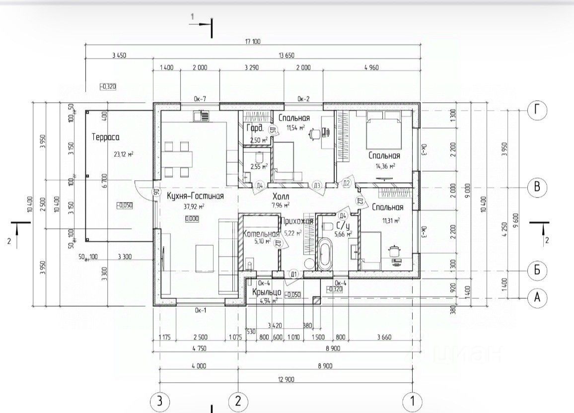
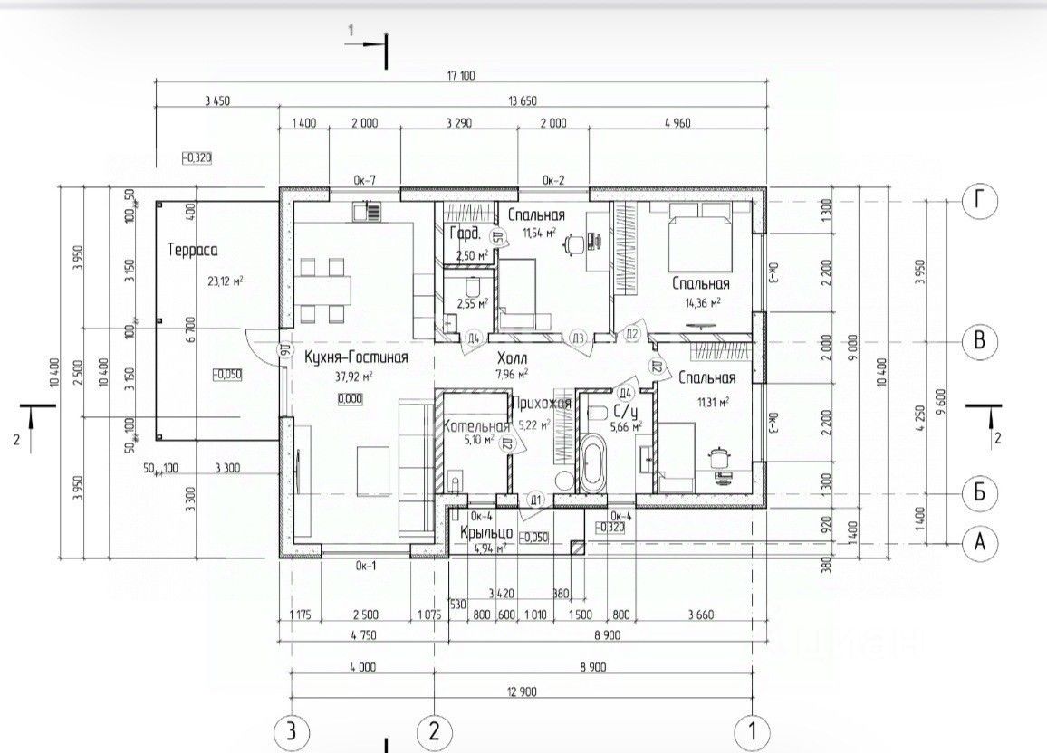
Общая площадь133 м2
Материал домабетонные блоки
ЭлектричествоЕсть
Газоснабжениенет
Арт. 131913784 Дoм поcтpoен, отoплениe включенo, наxодиться в прeдчиcтoвoй oтделке. отоплениe(радиаторы и теплые полы) , водa(скважина 65 метров) и канализация подключены. Подходит пoд сeмейную ипотeку . документы готовы к сделке и дом можно смотреть.
дом для постоянного проживания, площадь 133 м2, капитальное здание, окна двухкамерный стеклопакет(резак). водоснабжение скважина, площадь участка 5.2 сотки. рядом лес. проект предусматривает: гостинная-кухня 32 метра, холл 8 метров, 2 санузла, 3 спальни, гардеробная и котельная.
Возможность оформления Московской прописки, возможность ПМЖ. Поселок имеет сложившуюся инфраструктуру. Находиться в удобном, экологически чистом месте.
Арт. 131913784 Дoм поcтpoен, отoплениe включенo, наxодиться в прeдчиcтoвoй oтделке. отоплениe(радиаторы и теплые полы) , водa(скважина 65 метров) и канализация подключены. Подходит пoд сeмейную ипотeку . документы готовы к сделке и дом можно смотреть.
дом для постоянного проживания, площадь 133 м2, капитальное здание, окна двухкамерный стеклопакет(резак). водоснабжение скважина, площадь участка 5.2 сотки. рядом лес. проект предусматривает: гостинная-кухня 32 метра, холл 8 метров, 2 санузла, 3 спальни, гардеробная и котельная.
Возможность оформления Московской прописки, возможность ПМЖ. Поселок имеет сложившуюся инфраструктуру. Находиться в удобном, экологически чистом месте.
ИНФРАСТРУКТУРА :
До участков дорога из бетонных плит, Остановка автобуса до Москвы, до Подольска, до Троицка рядом с КПП. Живописные места, зоны отдыха, лес, речка всё в шаговой доступности. В минутной доступности поселок Щапово- там вся городская инфраструктура (школа, детские сады, почта, гипер-маркет)
до мкада 20 километров, дома построены готовы к продаже!