сдам универсальное помещение, Семеновская Б., 11 ст121 550 000 ₽ в месяц
29 янв
Дата публикации объявления
Обн. сегодня
Дата обновления объявления
1578 ₽/м² в месяц
Параметры
Общая площадь982 м2
Этаж1
Отдельный входесть
Год постройки1892
Назначение помещения
кафе, бар, ресторан
БЕЗ КОМИССИИ! Прямая аренда! По запросу вышлем инфо по каждому помещению.
В 2-ух мин. пешком от м. Электрозаводская в бизнес-парке сдаются в аренду свободные помещения.
1-3 этажи 982 кв.м - под общепит и мероприятия, спортклуб. 3 обеденных зала, служебные помещения, 6 кухонь, душевая, подсобные и складские помещения, 8 с/у. Высота потолков 3 м.
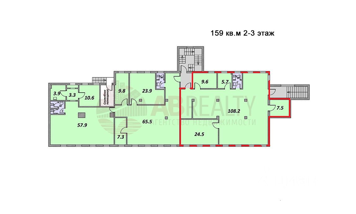
Площадь 982 кв.м возможно деление на 317.3 кв.м 3 этаж и 664 кв.м 1-2 этажи.
1. Блок 317.3 кв.м состоит из 273,6 кв.м + антресоль 3-го этажа 43,7 кв.м. Состоит: служебные помещения, подсобные и складские помещения, кухня, моечная. Под кафе, ресторан, общепит и тд.
БЕЗ КОМИССИИ! Прямая аренда! По запросу вышлем инфо по каждому помещению.
В 2-ух мин. пешком от м. Электрозаводская в бизнес-парке сдаются в аренду свободные помещения.
1-3 этажи 982 кв.м - под общепит и мероприятия, спортклуб. 3 обеденных зала, служебные помещения, 6 кухонь, душевая, подсобные и складские помещения, 8 с/у. Высота потолков 3 м.
Площадь 982 кв.м возможно деление на 317.3 кв.м 3 этаж и 664 кв.м 1-2 этажи.
1. Блок 317.3 кв.м состоит из 273,6 кв.м + антресоль 3-го этажа 43,7 кв.м. Состоит: служебные помещения, подсобные и складские помещения, кухня, моечная. Под кафе, ресторан, общепит и тд.
2. Блок 664.9 кв.м 1-2 этажи. 1 этаж 161,8 кв.м., 2 этаж 503,1 кв.м., состоит: 3 зала open-space, служебные помещения, подсобные и складские помещения, 8 с/у. Отдельный вход с центральной улицы. Под кафе, ресторан, общепит и тд.