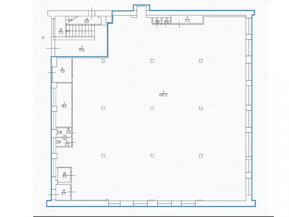
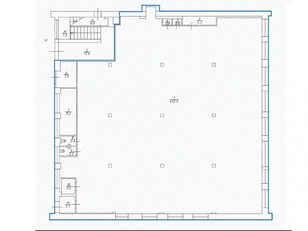
Предлагается к продаже готовый арендный бизнес с арендатором OZON (даркстор), расположенный на первом этаже БЦ''ВАЛЛЕКС'' , по адресу ЮЗАО, Старокалужское шоссе, д. 62, общей площадью 551,7 м2. БЦ ''ВАЛЛЕКС'' находится в 1 минуте пешком от станции метро Воронцовская. 1 этаж с ул. Власова. В непосредственной близости от объекта заканчивается строительство огромного жилого массива.
Технические характеристики: Общая площадь - 527,8 м2 (первый этаж). Высота потолков - 3 м. Большие окна по фасаду, большая наземная охраняемая парковка у помещения, две мокрые точки, зона погрузки/разгрузки, Парковка наземная, круглосуточно охраняемая с пропускной системой.
Коммерческие условия: Стоимость продажи - 136 000 000 рублей.
Лот 145917.
Предлагается к продаже готовый арендный бизнес с арендатором OZON (даркстор), расположенный на первом этаже БЦ''ВАЛЛЕКС'' , по адресу ЮЗАО, Старокалужское шоссе, д. 62, общей площадью 551,7 м2. БЦ ''ВАЛЛЕКС'' находится в 1 минуте пешком от станции метро Воронцовская. 1 этаж с ул. Власова. В непосредственной близости от объекта заканчивается строительство огромного жилого массива.
Технические характеристики: Общая площадь - 527,8 м2 (первый этаж). Высота потолков - 3 м. Большие окна по фасаду, большая наземная охраняемая парковка у помещения, две мокрые точки, зона погрузки/разгрузки, Парковка наземная, круглосуточно охраняемая с пропускной системой.
Коммерческие условия: Стоимость продажи - 136 000 000 рублей. Стоимость квадратного метра - 257'673рублей. Арендатор: Ozon (даркстор) МАП - 1 500 000 рублей, ГАП - 18 000 000 рублей Договор (5 лет, от 31.01.24) - до 2029 г. Индексация - 7% Окупаемость: 7,5 лет Форма сделки - ДКПН (УСН)