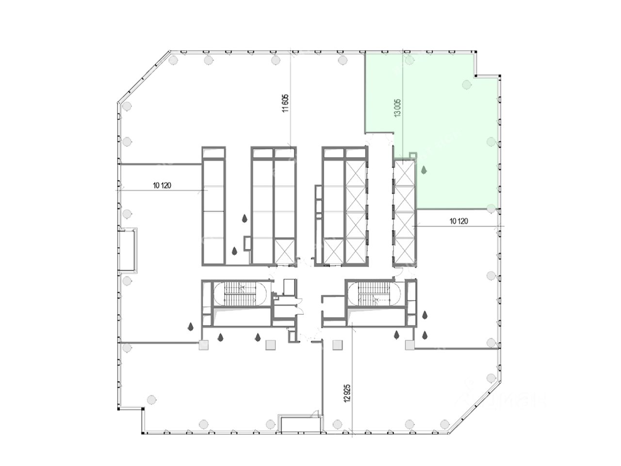
Офисное помещение 306.9 кв. м в бизнес-центре ''iCity. Башня Space''. Прямая продажа, без комиссии.
Округ: Центральный (ЦАО). Район: Пресненский.
Характеристики:
- Класс: A,
- Арендопригодная площадь: 89416,
- Код налоговой: 03,
- Размер типового этажа: 1650-1900,
- Наличие лифта: Есть,
- Кол-во мест подземного паркинга: 950.
Стоимость: 281 427 300 руб.
Финансовые условия:
- В стоимость включено: НДС,
- Налог: Включая НДС.
Оформление сделки напрямую от собственника, без комиссии.
Готовы оперативно организовать просмотр в удобное время, предоставить PDF-презентацию и план.
Точное местоположение объекта можно найти по данным координатам: 55.755302,37.






























