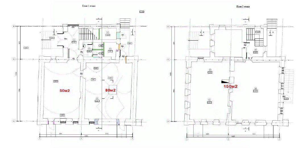
Лот: 37805. Отдельно стоящее здание в ЦАО Москвы. Первая линия Кожевнической улицы. 7 минут пешком до станции метро Павелецкая. В окружении 15 деловых центров и ЖК премиум класса. 2 этажа в стиле лофт. Объект культурного наследия ''Палаты купца Лихонина''. Дом полностью отреставрирован. Подойдёт под ресторан, клинику, офис.
Площадь з/у 559 кв. м., в аренде на 49 лет. Водоснабжение и канализация-центральные. Возможность организации собственной парковки на 15 м/м.


















