Продается офисное помещение на 12 этаже в БЦ Резиденция Тверская, В+ класса, который находится по адресу: ул. 2-я Брестская, д. 6.
Пешая доступность от станций метро Маяковская, Белорусская, Новослободская. Рядом пролегают Садовое и Бульварное кольцо, улицы 1-я Тверская-Ямская, Новослободская, Долгоруковская.
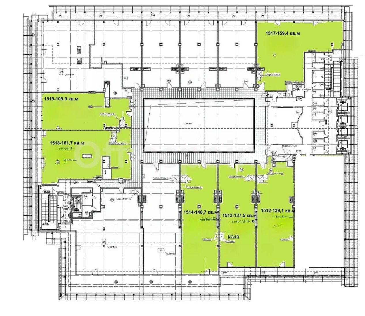
Помещение без ремонта, открытая планировка. Панорамные окна. Приточно-вытяжная система вентиляции, центральная система кондиционирования. Наземная парковка. На фото представлены рендеры.
Условия сделки и стоимость подлежат обсуждению.























