Термин "Чистая продажа" означает, что в квартире никто не прописан или
есть куда выписаться и вывезти вещи. Это лучший вариант для покупателя.
Вероятность срыва сделки минимальна.
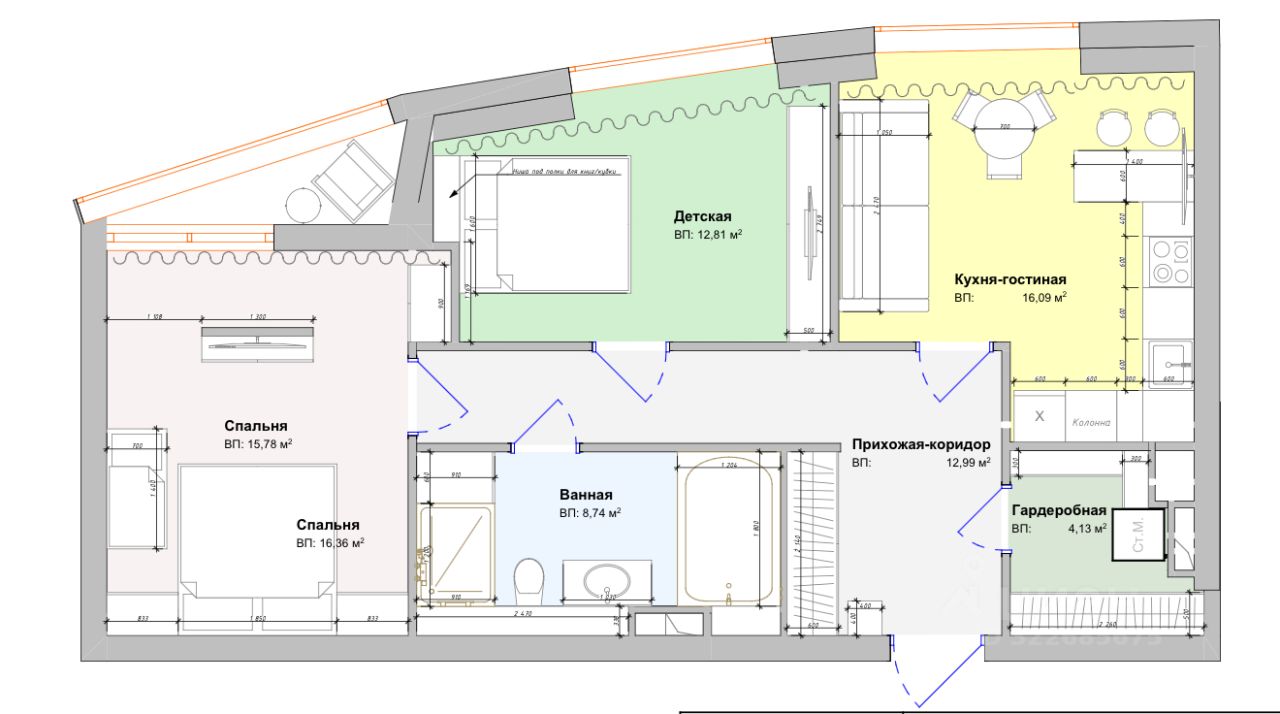
Продается прекрасная трехкомнатная (ЕВРО) квартира в престижном, новом, монолитном доме в комплексе бизнес-класса ''Символ'', на первой линии парка Зеленая Река (вход в парк сразу за домом). Квартира расположена в малоэтажном доме (всего 7 жилых этажей, 4 квартиры на лестничной клетке, 127 квартир в доме) с высокими потолками (3,2 м), и шикарной входной группой (подъездом). Дом с собственной огороженной территорией со шлагбаумом, и надземным и подземным паркингом. Квартира с очень удачной планировкой с большой кухней-столовой (укомплектованной кухонным гарнитуром с дорогой техникой), двумя спальнями правильной формы, просторной гардеробной, большим сан узлом (полностью укомплектован всей необходимой дорогой сантехникой и мебелью) и просторным коридором.
Продается прекрасная трехкомнатная (ЕВРО) квартира в престижном, новом, монолитном доме в комплексе бизнес-класса ''Символ'', на первой линии парка Зеленая Река (вход в парк сразу за домом). Квартира расположена в малоэтажном доме (всего 7 жилых этажей, 4 квартиры на лестничной клетке, 127 квартир в доме) с высокими потолками (3,2 м), и шикарной входной группой (подъездом). Дом с собственной огороженной территорией со шлагбаумом, и надземным и подземным паркингом. Квартира с очень удачной планировкой с большой кухней-столовой (укомплектованной кухонным гарнитуром с дорогой техникой), двумя спальнями правильной формы, просторной гардеробной, большим сан узлом (полностью укомплектован всей необходимой дорогой сантехникой и мебелью) и просторным коридором. В квартире сделан современный (дизайнерский) ремонт в классическом стиле (для себя) из дорогих материалов, имеется центральная приточно-вытяжная вентиляция, выполнено скрытое (канальное) кондиционирование, высокоскоростной интернет (500 Мб), керамогранит и теплые полы по всему периметру квартиры (зонированы по помещениям). Квартира продается со всем, что есть на фото (вся бытовая техника, дорогая мебель, 3 ТВ). Дом расположен в районе с лучшей транспортной локацией г. Москвы и развитой инфраструктурой (первый дом ом метро, 150 метров от м. Римская и м. Площадь Ильича), рядом МЦД, МЦК, остановки общественного транспорта и т.д., что позволяет легко добраться до центра Москвы и до любого района столицы. В ЖК имеются детские сады, престижные школы, сетевые магазины, паркинги, МФЦ, объекты социальной инфраструктуры и вообще все, что необходимо для комфортного проживания. Квартира в собственности с 2021 года (купля-продажа). Один взрослый собственник, никто не зарегистрирован, приобреталась за собственные средства. Свободна, готова к продаже.