Код объекта: 1788055.
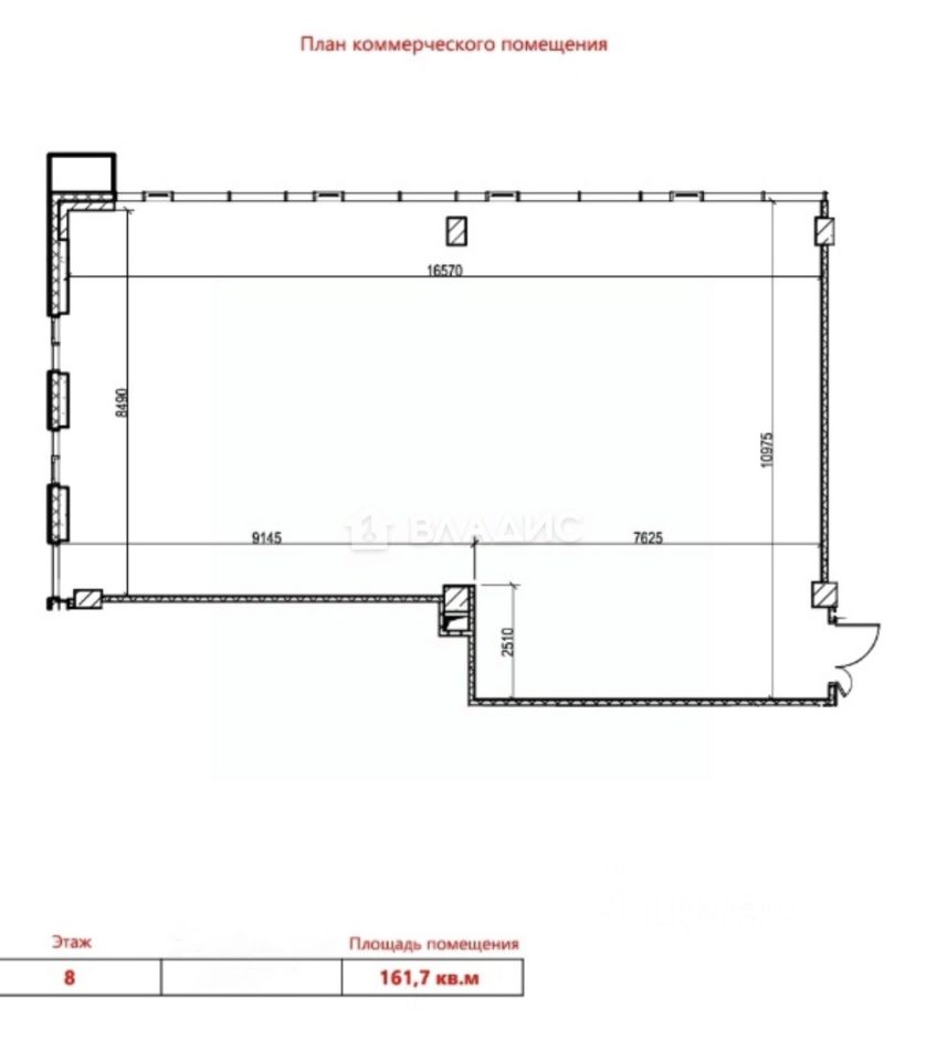
Сдается офисное помещение 162 м² на 8 этаже в бизнес-центре класса А ''Ostankino Business Park''.
Преимущества локации:
- 1 минута пешком до м. Бутырская
- 6 минут до МЦД Останкино
- Менее 10 минут на машине до ТТК и СВХ
Инфраструктура БЦ:
- Современные зоны лобби
- Охрана и пропускной режим
- Наземный паркинг
- Первые этажи под ритейл и кафе
Технические характеристики:
- Отделка: бетон (возможен вариант с отделкой)
- Высота потолков: 3,7 м
- Нагрузка на пол: 400 кг/м²
- Электропитание: 0,1 кВт/м²
- Системы: приточно-вытяжная вентиляция, центральное кондиционирование, АПС, ОПС и пожаротушение.
- Окна с проветриванием, центральная диспетчеризация










