Если цена в объявлении изменится, мы сразу сообщим вам об этом на электронную почту.
Нажимая «Подписаться», вы соглашаетесь с правилами.
продам дом59 000 000 ₽
1 сен
Дата публикации объявления
Обн. 23 мая
Дата обновления объявления
7
Количество просмотров (+ просмотры за сегодня)
Топ
121 901 ₽/м²
Чистая продажа
Термин "Чистая продажа" означает, что в квартире никто не прописан или
есть куда выписаться и вывезти вещи. Это лучший вариант для покупателя.
Вероятность срыва сделки минимальна.
Этажей2
Площадь участка13 соток
Общая площадь484 м2
ЭлектричествоЕсть
Газоснабжениецентральное
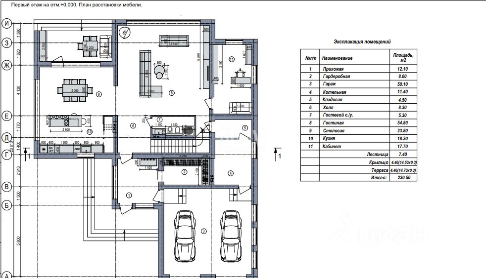
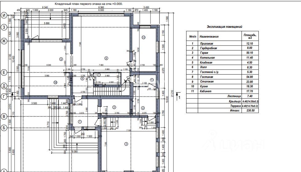
Лот 47928262. Современный дом с плоской крышей и панорамными окнами в поселке бизнес-класса ''Староникольское''.
Этот современный двухэтажный дом площадью 420 м² — сочетание минимализма, функциональности и изящной архитектуры. Лаконичные линии, панорамные окна и плоская крыша придают дому особый стиль. Пристроенный гараж с секционными воротами рассчитан на две машины.
Дом построен по индивидуальному проекту и расположен в престижном, охраняемом поселке с центральными коммуникациями. Здесь всё продумано для жизни без компромиссов.
Планировка и комфорт:
Первый этаж:
Прихожая с просторной гардеробной — удобно и практично. Котельная и кладовая — всё необходимое под рукой.
Лот 47928262. Современный дом с плоской крышей и панорамными окнами в поселке бизнес-класса ''Староникольское''.
Этот современный двухэтажный дом площадью 420 м² — сочетание минимализма, функциональности и изящной архитектуры. Лаконичные линии, панорамные окна и плоская крыша придают дому особый стиль. Пристроенный гараж с секционными воротами рассчитан на две машины.
Дом построен по индивидуальному проекту и расположен в престижном, охраняемом поселке с центральными коммуникациями. Здесь всё продумано для жизни без компромиссов.
Планировка и комфорт:
Первый этаж:
Прихожая с просторной гардеробной — удобно и практично. Котельная и кладовая — всё необходимое под рукой. Кухня-столовая 42 м² с выходом на террасу — центр притяжения семьи и гостей. Гостиная 55 м² с панорамным остеклением и высокими потолками — идеальное пространство для отдыха. Гостевой санузел и кабинет.
Второй этаж:
Мастер-спальня с гардеробной, собственной ванной комнатой и выходом на террасу. Две спальни для детей или гостей. Общий санузел и постирочная.
Инженерия и возможности:
Электричество: 3 фазы, 25 кВт. Центральные коммуникации: вода, канализация. Возможна отделка фасада и интерьера под ключ по индивидуальному проекту.
Локация:
Коттеджный поселок ''Староникольское'' — бизнес-класс у реки Десна, на месте старинной усадьбы. На въезде — КПП и круглосуточная охрана. В поселке — широкие дороги, ухоженная набережная, прогулочные зоны и единый архитектурный стиль.
Рядом:
Частная школа Vnukovo International School, Екатерининский лицей, Спортивный комплекс Vnukovo Sport Club, Храм Сошествия Святого Духа на возвышенности — гармония и вид на реку.
Такой дом — это не просто квадратные метры. Это архитектура, комфорт и редкое чувство пространства, которое ощущается с порога.
Звоните, чтобы узнать детали и договориться о просмотре — дом действительно впечатляет.