Предлагается на продажу нежилое, отдельно-стоящее здание (за исключением трех помещений площадью 1056 м² на 1 этаже и в подвале) расположенное в районе Замоскворечье (ЦАО) на первой линии домов 1-го Щипковского переулка, в шаговой доступности от станций метро Добрынинская и Павелецкая.
Предлагается на продажу нежилое, отдельно-стоящее здание (за исключением трех помещений площадью 1056 м² на 1 этаже и в подвале) расположенное в районе Замоскворечье (ЦАО) на первой линии домов 1-го Щипковского переулка, в шаговой доступности от станций метро Добрынинская и Павелецкая.
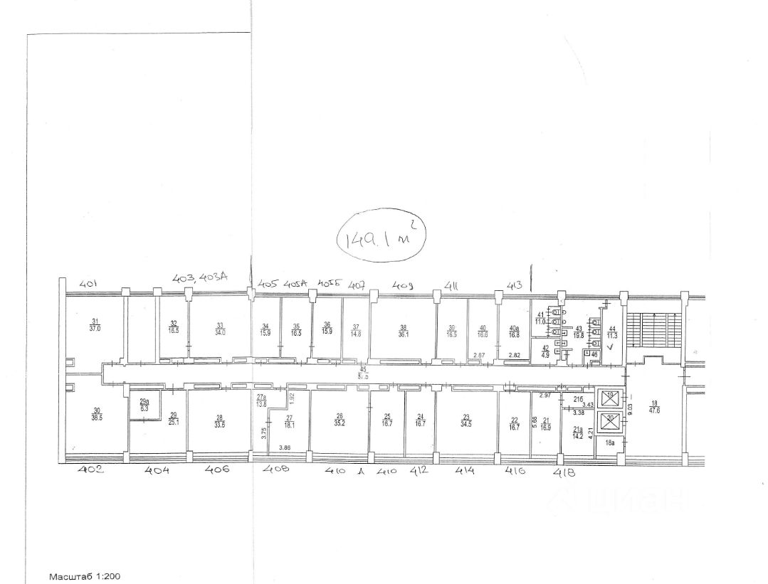
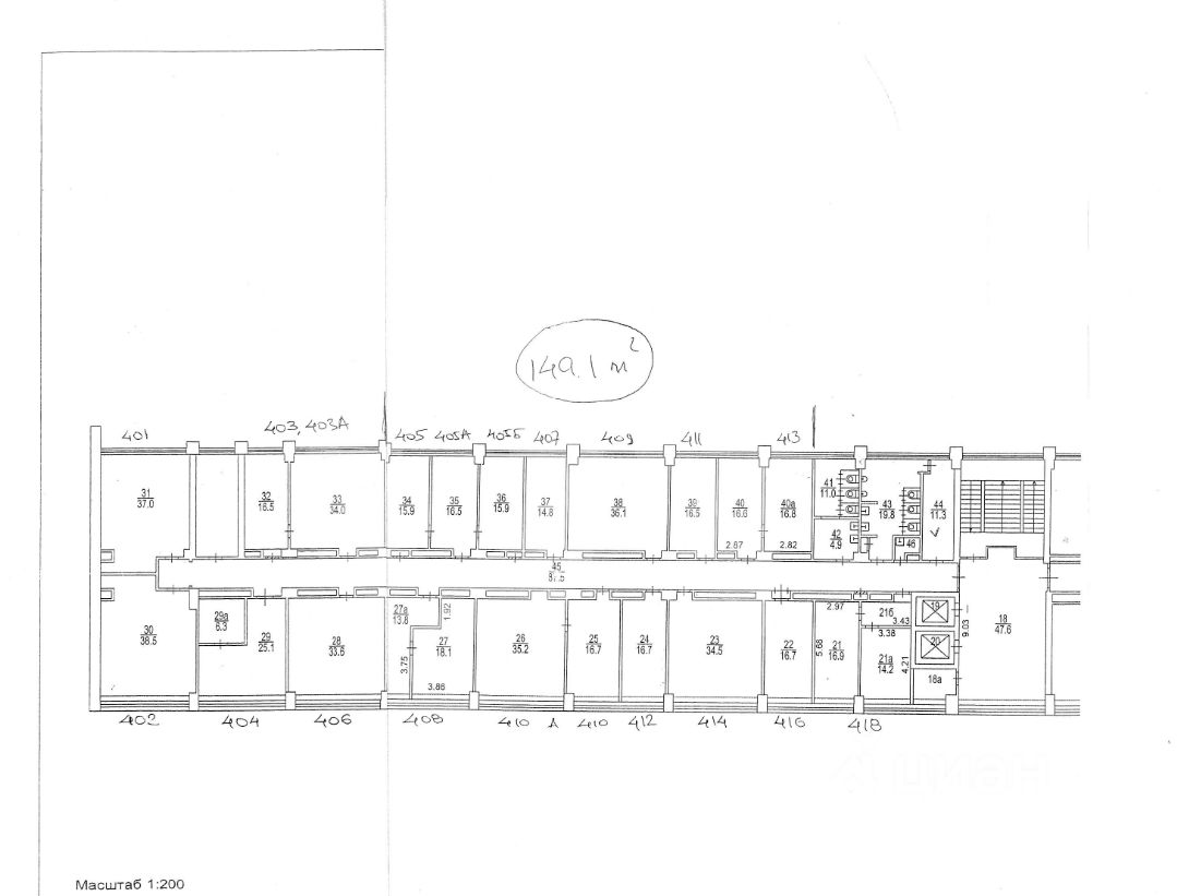
Общая площадь здания : 10 291 м² Продаваемая площадь лота : 8 208 м² В собственности третьих лиц : 1 056 м²
Общая площадь : 9 208 м² Наземная площадь : 7 642 м² Наземная без техэтажа : 6 278 м² Наземная без техэтажа и лестниц : 4 907 м²
Земельный участок : 4180 м² Вид права : аренда до 2072 года ВРИ : размещения объектов общественного питания (1.2.5) размещения административных и офисных зданий (1.2.7)
- Год постройки : 1972 - Год реконструкции : 2003 - Наружные стены : крупнопанельные - Перекрытия : железобетонные - Пассажирские лифты : 2 шт. - Наземная парковка : 30 м/м
Не является памятником конструктивизма / архитектуры. Не является эффективным и высокодоходным арендным бизнесом в текущей заполняемости по заявленной стоимости. Помещения частично сдаются в аренду, частично используются под собственные нужды. На 3 этаже есть помещение площадью 300 м² со вторым светом. Технический этаж не пригоден для сдачи в аренду. Лифт ходит с подвала на 4 этаж. Мощность электричества 655 кВт.