сдам торговые площади, Пятницкая, 16 ст11 250 000 ₽ в месяц
19 авг
Дата публикации объявления
Обн. сегодня
Дата обновления объявления
3
Количество просмотров (+ просмотры за сегодня)
15 984 ₽/м² в месяц
Параметры
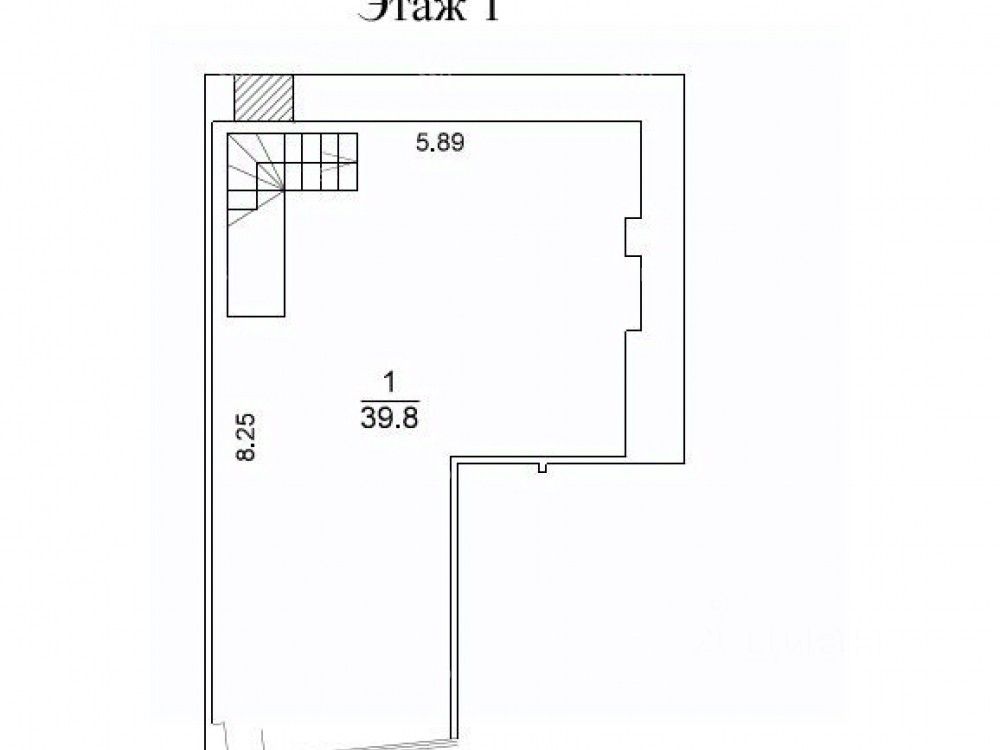
Общая площадь78,2 м2
Этаж1
Лот 152007.
ЦАО. Предлагается в аренду помещение в 3-этажном в административном здании площадью 78,2 кв.м., расположенном на одной из самых ресторанных улиц Москвы по адресу: г. Москва, Пятницкая 16 с.1. Помещение расположено на 1-ой фасадной линии Пятницкой улицы. Помещение расположено напротив м. ''Новокузнецкая'', на оживленной Пятницкой улице. Сложившееся торговое окружение. Трафик: 3 000 - 3 800 чел/час. Все кто выходят из метро видят это помещение. Окружение: Развитая инфраструктура, делающая эту улицу известной гастроулицей столицы: кафе, рестораны, магазины, банки, офисы. Рядом находятся Третьяковская галерея, Кадашевская и Овчинниковская набережные, различные музеи и скверы для прогулок.
Технические характеристики: Высота потолка 3,4 м.
Лот 152007.
ЦАО. Предлагается в аренду помещение в 3-этажном в административном здании площадью 78,2 кв.м., расположенном на одной из самых ресторанных улиц Москвы по адресу: г. Москва, Пятницкая 16 с.1. Помещение расположено на 1-ой фасадной линии Пятницкой улицы. Помещение расположено напротив м. ''Новокузнецкая'', на оживленной Пятницкой улице. Сложившееся торговое окружение. Трафик: 3 000 - 3 800 чел/час. Все кто выходят из метро видят это помещение. Окружение: Развитая инфраструктура, делающая эту улицу известной гастроулицей столицы: кафе, рестораны, магазины, банки, офисы. Рядом находятся Третьяковская галерея, Кадашевская и Овчинниковская набережные, различные музеи и скверы для прогулок.
Технические характеристики: Высота потолка 3,4 м. Все коммуникации. Электрической мощности достаточно для ведения любого вида деятельности. Возможен общепит. Общая площадь 78,2 кв. м. 1 этаж - 39,8 кв. м. Подвал - 38,4 кв. м. Состояние: за выездом Бара ''Брюзга''
Коммерческие условия: Стоимость аренды - 1 250 000 рублей Стоимость аренды в месяц за кв. м. - 15 984 рублей УСН