Продажа торгового помещерния в ЦАО с арендатором, расположено на первой фасадной линии в пешей доступности от 3-х станций метро: ул. 1905 года, Баррикадная и Краснопресненская по адресу: Москва, Красная Пресня, 32-34. Интенсивный пешеходный и автомобильный трафик, развитая инфраструктура и сложившееся торговое окружение. В шаговой доступности расположены остановки общественного транспорта.
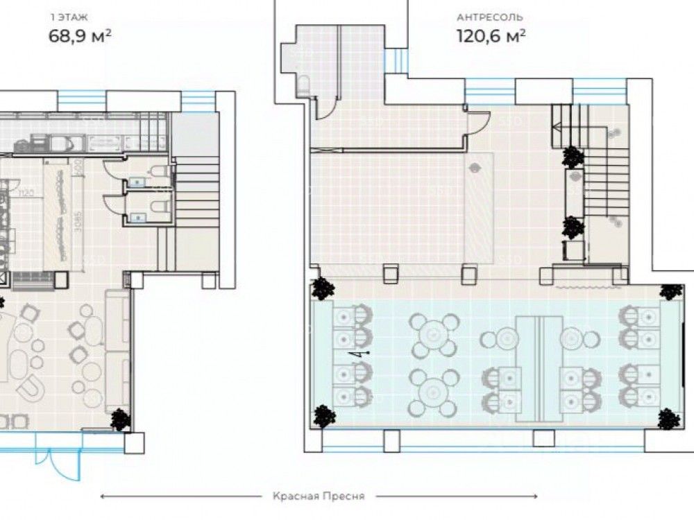
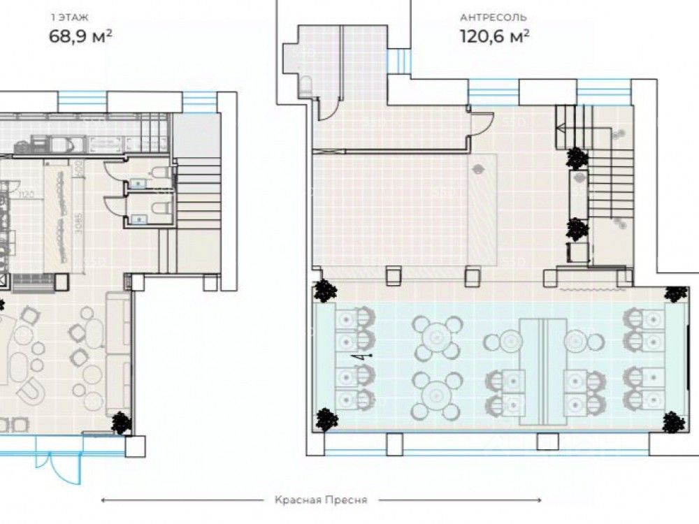
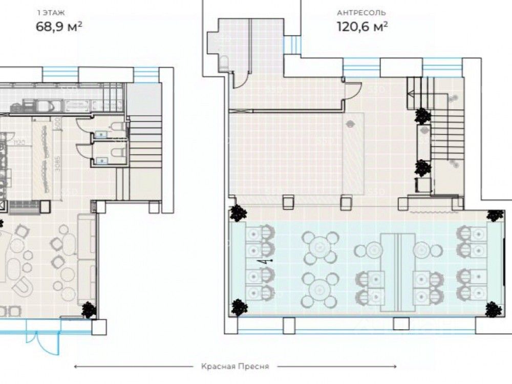
Технические условия: Помещение общей площадью 189,5 кв.м имеет отдельный вход с фасада здания. По планировке: первый этаж - 67,8 кв.м., антресоль - 120,7 кв.м. с окнами во двор, очень светлый. Открытая планировка. Наличие центральных коммуникаций. Высота потолков - 2,9 и 2.6 м. Электричество - достаточное количество под любой вид деятельности, по запросу.
Лот 6551.
Продажа торгового помещерния в ЦАО с арендатором, расположено на первой фасадной линии в пешей доступности от 3-х станций метро: ул. 1905 года, Баррикадная и Краснопресненская по адресу: Москва, Красная Пресня, 32-34. Интенсивный пешеходный и автомобильный трафик, развитая инфраструктура и сложившееся торговое окружение. В шаговой доступности расположены остановки общественного транспорта.
Технические условия: Помещение общей площадью 189,5 кв.м имеет отдельный вход с фасада здания. По планировке: первый этаж - 67,8 кв.м., антресоль - 120,7 кв.м. с окнами во двор, очень светлый. Открытая планировка. Наличие центральных коммуникаций. Высота потолков - 2,9 и 2.6 м. Электричество - достаточное количество под любой вид деятельности, по запросу. Есть возможность установки вытяжки с фильтром во двор.
Коммерческие условия: Арендатор — ''Хинкали Point'' / Срок договора 5 лет/ Безусловная индексация 7% МАП 1.250.000 рублей / ГАП 15.000.000 рублей Стоимость объекта - 157.500.000 рублей Стоимость за 1 кв.м - 828.900 рублей Продажа по ДКП