СОБСТВЕННИКИ! Предлагается к продаже 9-этажное административное здание площадью 6 382,7 м2 на территории имущественного комплекса. Объект находится в 20-ти минутах от станции МЦК/МЦД Лихоборы. Первая линия Лихоборской набережной.
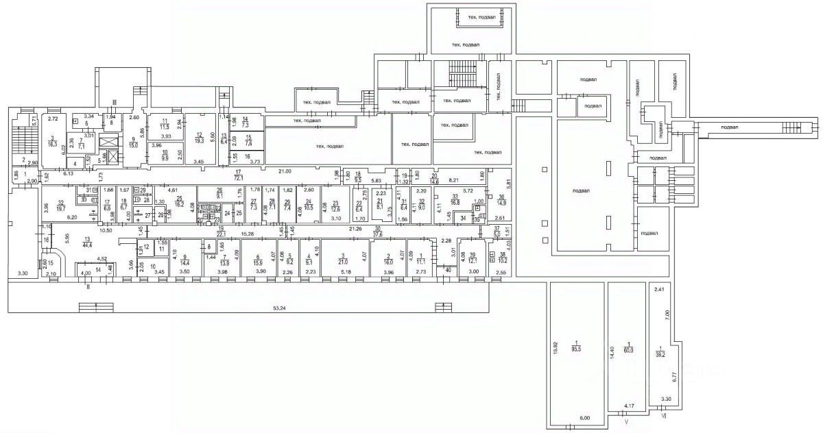
Характеристики здания: - 9 этажей с цоколем, подвалом, - Площадь по этажам: 1 эт. 1425,1 м2, антресоль 1 эт. 63,8 м2, тех.эт. 309 м2, тех.эт. 1 120,3 м2, 2 эт. 307,9 м2, 3 эт. 297,8 м2, 4 эт. 308,3 м2, 5 эт. 304,3 м2, 6 эт. 303,8 м2, 7 эт. 299,6 м2, 8 эт. 310,9 м2, 9 эт. 308 м2, подвал 359,6 м2, цоколь 1282,9 м2, тех.
СОБСТВЕННИКИ! Предлагается к продаже 9-этажное административное здание площадью 6 382,7 м2 на территории имущественного комплекса. Объект находится в 20-ти минутах от станции МЦК/МЦД Лихоборы. Первая линия Лихоборской набережной.
Характеристики здания: - 9 этажей с цоколем, подвалом, - Площадь по этажам: 1 эт. 1425,1 м2, антресоль 1 эт. 63,8 м2, тех.эт. 309 м2, тех.эт. 1 120,3 м2, 2 эт. 307,9 м2, 3 эт. 297,8 м2, 4 эт. 308,3 м2, 5 эт. 304,3 м2, 6 эт. 303,8 м2, 7 эт. 299,6 м2, 8 эт. 310,9 м2, 9 эт. 308 м2, подвал 359,6 м2, цоколь 1282,9 м2, тех.подвал 381,4 м2,
- Материал стен: крупнопанель, перекрытия ж/б, - Высота потолков: 2,7-5,5 м, - 15 входов в здание, - Смешанная планировка, - Коммуникации: ХВС, ГВС, канализация, электроэнергия (450 кВт), отопление от газ.котельной.
Удобный съезд с СВХ (МСД). Парковка на закрытой, охраняемой территории.