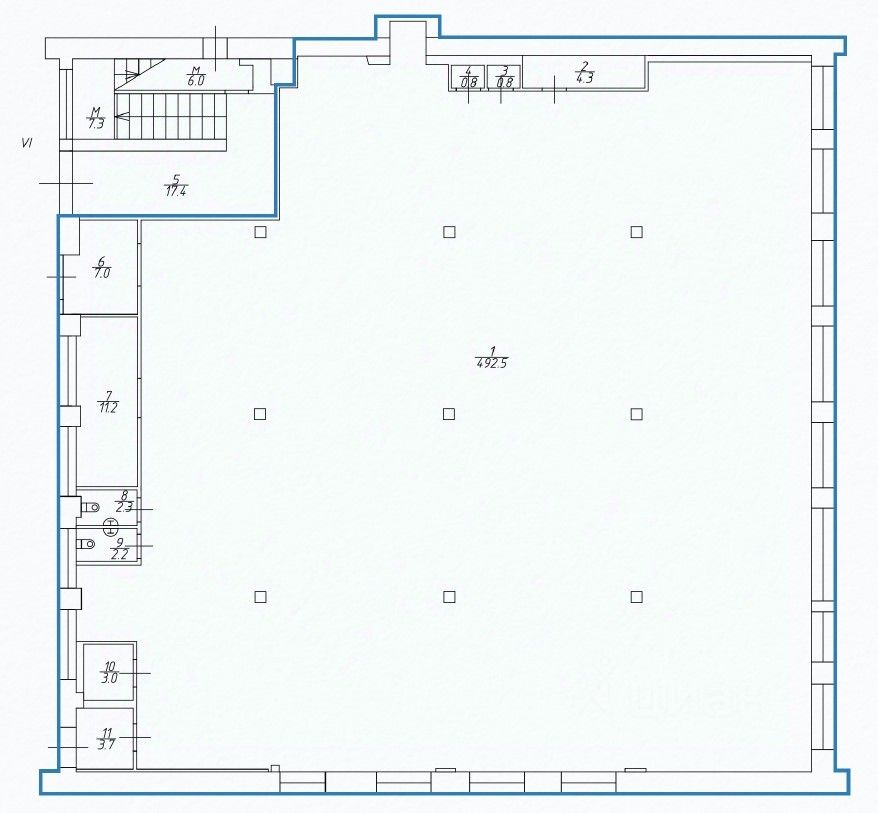
СОБСТВЕННИКИ! Предлагается к продаже торговое помещение площадью 527,8 м2 с арендатором - даркстор Ozon (ДДА на 5 лет), расположенное на 1 этаже. Объект находится в прямой видимости от выхода из метро Воронцовская. МАП - 1,5 млн.руб. (с 01.02.26 г.), ежегодная индексация - 10%.
Характеристики помещения:
- отдельный вход,
- свободная планировка,
- высота потолков 3 м,
- большие окна по периметру здания,
- зона погрузки/разгрузки,
- центральные коммуникации,
- две мокрых точки,
- круглосуточно охраняемая территория с пропускной системой,
- парковка перед зданием.













