салон красоты, парикмахерская, кафе, бар, ресторан, фитнес-центр, спортивный зал
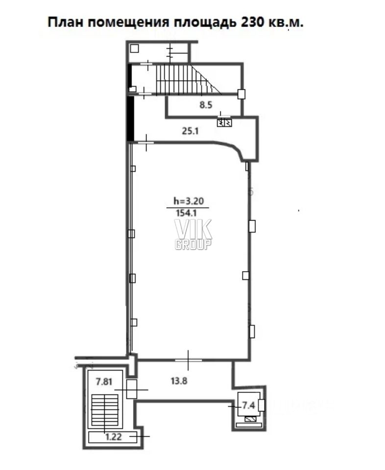
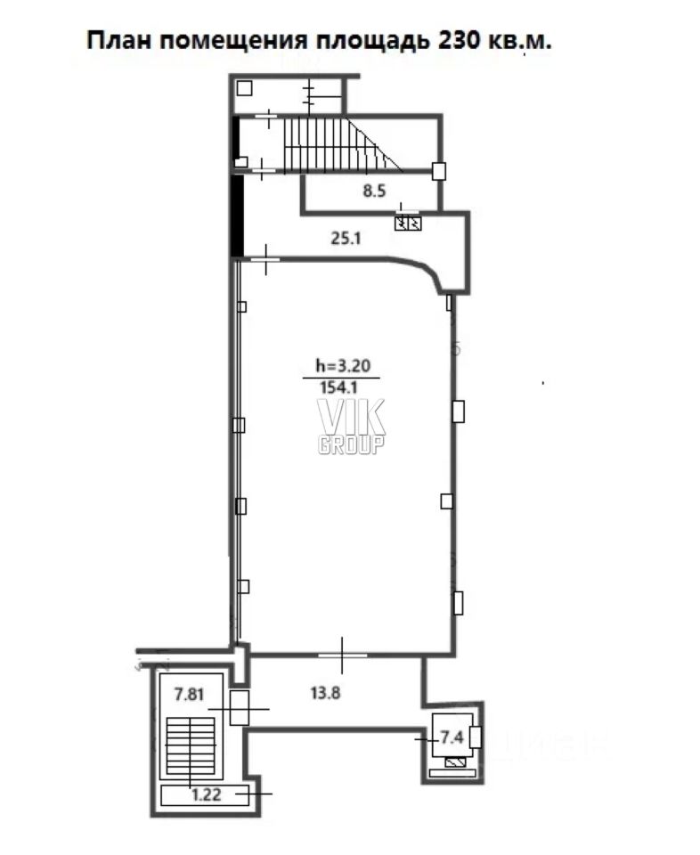
Продается два нежилых помещения свободного назначения в г Москве район Братеево по ул Ключевая дом 22 корпус 2. Помещения расположены на цокольном этаже отдельно стоящего двухэтажного панельного дома, построенного в 1998г. Общая площадь всех помещений 320кв.м. Возможно купить по отдельности. Помещение, площадь 230кв.м, с интересной и функциональной планировкой (на данный момент используется под ресторан, банкетный зал на 120 посадочных мест): два отдельных благоустроенных входа с зоной разгрузки, пологие лестницы, холл 15кв.м с гардеробной, зал 155кв.м с двумя входами на кухню, в кухонной зоне 26кв.м установлена электроплита мощностью 380 кВт, большой мангал с вытяжкой, помещения для хранения продуктов, гостевой санузел и отдельный для персонала, два подсобных помещения от 7 до 8кв.м.
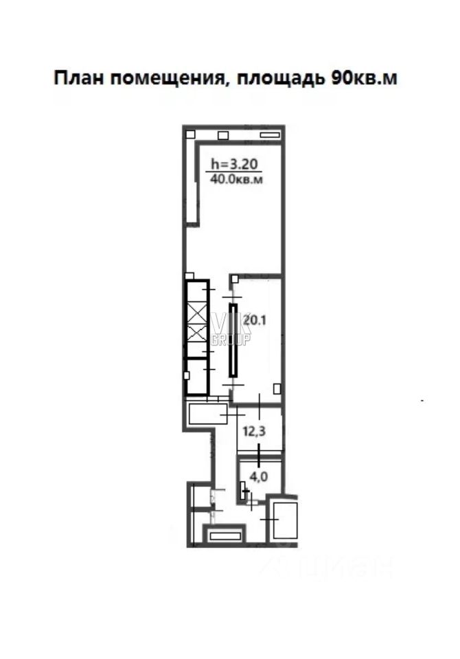
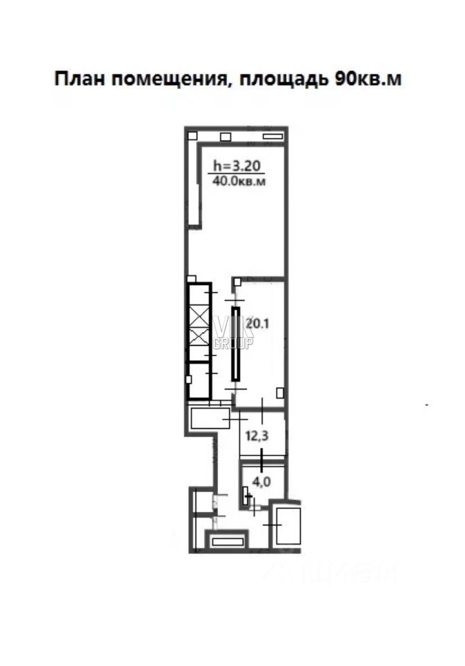
Продается два нежилых помещения свободного назначения в г Москве район Братеево по ул Ключевая дом 22 корпус 2. Помещения расположены на цокольном этаже отдельно стоящего двухэтажного панельного дома, построенного в 1998г. Общая площадь всех помещений 320кв.м. Возможно купить по отдельности. Помещение, площадь 230кв.м, с интересной и функциональной планировкой (на данный момент используется под ресторан, банкетный зал на 120 посадочных мест): два отдельных благоустроенных входа с зоной разгрузки, пологие лестницы, холл 15кв.м с гардеробной, зал 155кв.м с двумя входами на кухню, в кухонной зоне 26кв.м установлена электроплита мощностью 380 кВт, большой мангал с вытяжкой, помещения для хранения продуктов, гостевой санузел и отдельный для персонала, два подсобных помещения от 7 до 8кв.м. Выполнен качественный ремонт в классическом стиле: входная группа отделана декоративным камнем и на стенах декоративная штукатурка с художественной росписью, пол выложен кафелем с мозаичным орнаментом, двойные фигурные потолки с точечными светильниками, цветной фоновой подсветкой, красивыми люстрами, на стенах в зале прекрасные живописные картины ручной работы, современные столы со стульями в изысканном убранстве, грамотно обустроен DJ подиум, просторная барная стойка, металлическая входная дверь. Кадастровый 77:05:0012006:6145. Помещение, площадь 90кв.м (на данный момент используется под караоке-бар на 40 посадочных мест): с выделенными зонами для отдыха 40 и 20кв.м, кабинет 12кв.м, холл 12кв.м с обустроенным DJ местом. Кадастровый 77:05:0012006:6146. Высота потолков 3,2м. Все коммуникации- центральные, разрешённая электрическая мощность 150кВт, установлена приточно-вытяжная вентиляция. Продается готовый арендный бизнес с высокой доходностью, окупаемость менее 5 лет. Помещения возможно использовать под любой вид деятельности: офис, мастерскую, студию красоты, торговую точку, фитнес зал, квест-шоу, лазертаг. Отличное местоположение: много парковочных мест, густонаселенный жилой район, высокий пешеходный и автомобильный трафик. Развита инфраструктура района. Хорошее транспортное сообщение, 250 метров от метро Алма-Атинская. Полная стоимость в ДКП. Свободная продажа.