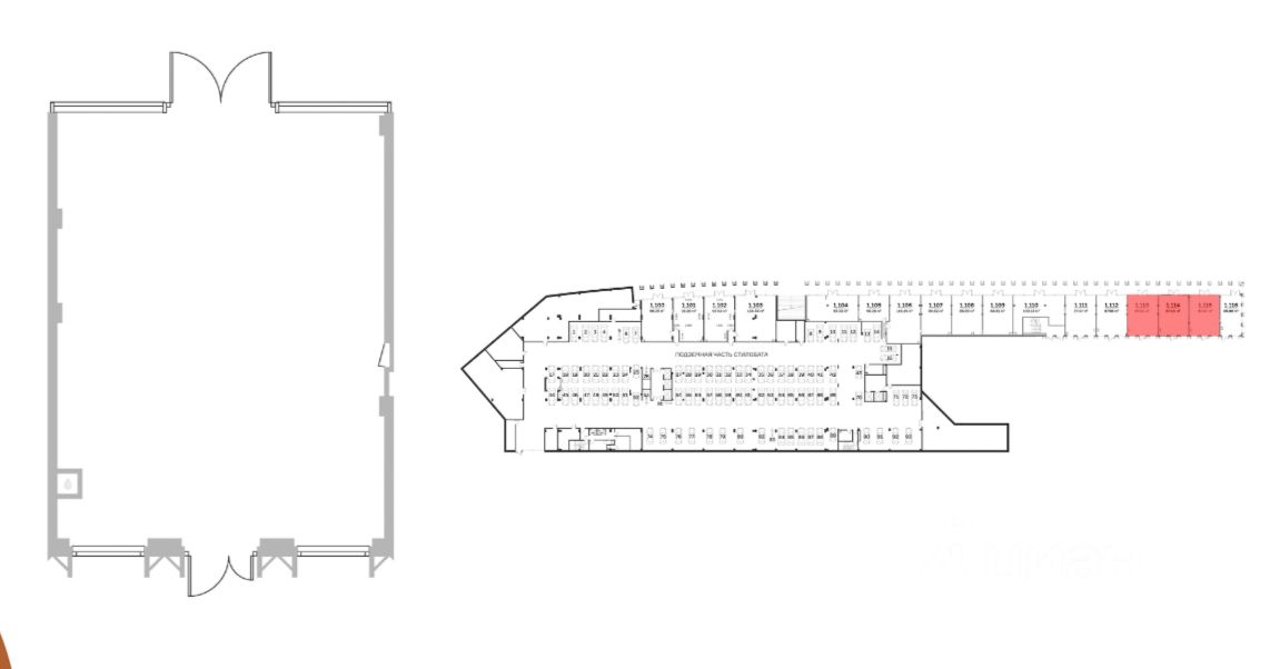
Коммерческое помещение на 1-й линии Жукова проезда в Даниловском районе. Рядом строятся
жилые комплексы бизнес- и премиум-класса Era, High Life, Voxhall, будет построено 330 000 жилых и офисных квадратных метров, соответсвенно обеспечен интенсивный пешеходный и автомобильный трафик.
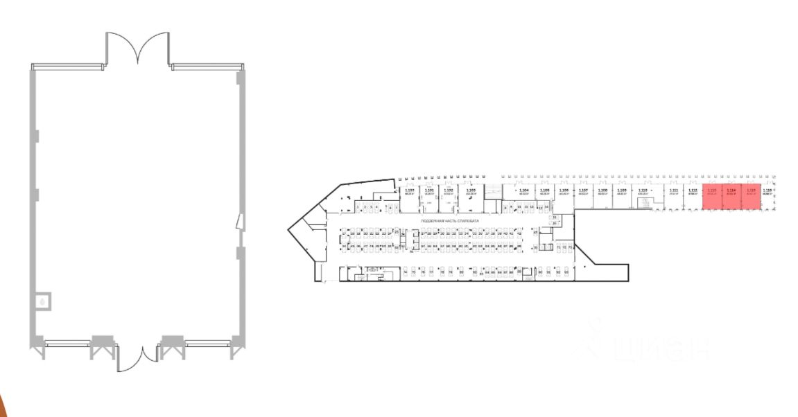
Объект с открытой планировкой площадью 88 м² расположен на 1-м этаже в бизнес-центре
Taller. В помещении установлена вытяжка, идеально под общепит. Отдельный вход с улицы и со двора, витринное остекление. Предусмотрены зона разгрузки и место для рекламы на фасаде. На территории бизнес-центра спланированы наземная и подземная парковки.
Электрическая мощность 44 кВт
Вытяжка 400*100
Арендные каникулы 5 месяцев








