Если цена в объявлении изменится, мы сразу сообщим вам об этом на электронную почту.
Нажимая «Подписаться», вы соглашаетесь с правилами.
продам отдельностоящее здание, Полянка Б., 65/74 ст1345 000 000 ₽
11 июня 2025
Дата публикации объявления
Обн. вчера
Дата обновления объявления
11
Количество просмотров (+ просмотры за сегодня)
298 701 ₽/м²
Параметры
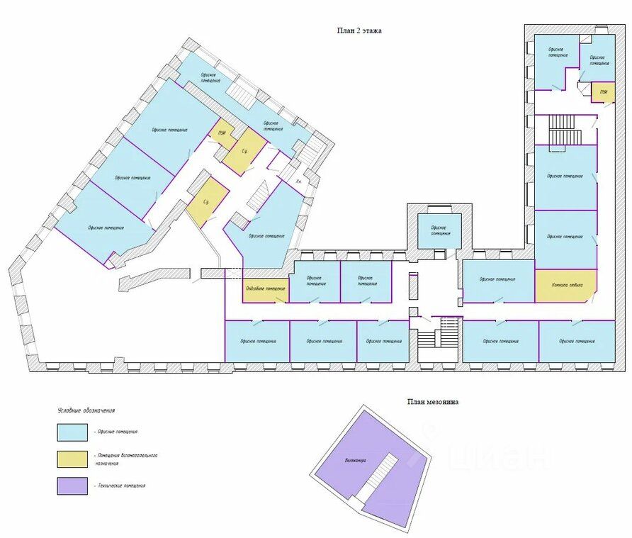
Общая площадь1155 м2
Этаж1
Продается часть отдельно стоящего здания, расположенное в самом центре Замоскворечья, на слиянии двух центральных улиц: Большая Полянка и Большая Ордынка, третья часть фасада выходит непосредственно на Садовое кольцо (Серпуховскую площадь), т.е. в треугольнике успеха, что безусловно повышает инвестиционную привлекательность здания. ЕСТЬ ВОЗМОЖНОСТЬ ПРОДАТЬ ЗДАНИЕ ЦЕЛИКОМ. Особняк, построенный в 1882 г., является объектом культурного наследия. Особняк имеет вход с Большой Ордынки, а также несколько входов со двора. Особняк состоит из двух этажей с широкой парадной лестницей и с переменной высотой потолков от 3 до 5 метров, мезонином, а также из теплого сухого подвала со сводчатыми стенами, окнами в приямках и также высокими потолками до 5 м.
Продается часть отдельно стоящего здания, расположенное в самом центре Замоскворечья, на слиянии двух центральных улиц: Большая Полянка и Большая Ордынка, третья часть фасада выходит непосредственно на Садовое кольцо (Серпуховскую площадь), т.е. в треугольнике успеха, что безусловно повышает инвестиционную привлекательность здания. ЕСТЬ ВОЗМОЖНОСТЬ ПРОДАТЬ ЗДАНИЕ ЦЕЛИКОМ. Особняк, построенный в 1882 г., является объектом культурного наследия. Особняк имеет вход с Большой Ордынки, а также несколько входов со двора. Особняк состоит из двух этажей с широкой парадной лестницей и с переменной высотой потолков от 3 до 5 метров, мезонином, а также из теплого сухого подвала со сводчатыми стенами, окнами в приямках и также высокими потолками до 5 м. На собственной огороженной территории с автоматическими воротами размещена наземная парковка на 10 машин. Электричество по запросу. Особняк предлагается без ремонта, но по желанию Продавец может сделать ремонт за дополнительную плату с учетом ваших пожеланий и корректировок. В данное время создан типовой дизайн проект и одобрен Департаментом культурного наследия. Сложившаяся торговая и деловая инфраструктура, премиальное жилое окружение, все это создает идеальные условия для реализации любых проектов: ресторана, банка, гостиничного комплекса, галереи, презентабельного представительства фирмы, шоурума, бизнес-центра. Инвестиционная привлекательность: - Ликвидная площадь в премиальной локации - Растущий спрос со стороны арендаторов и покупателей на коммерческую недвижимость в Замоскворечье - Объект подчеркивает статус владельца уникальной локацией — идеальное решение для ценящих престиж и надёжная инвестиция в ликвидную недвижимость.