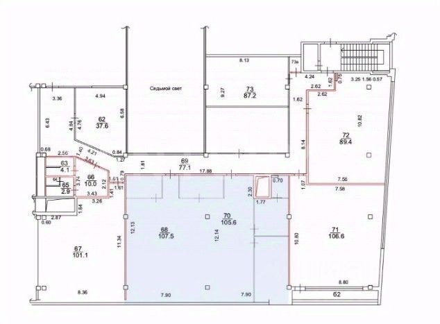
Предлагается в аренду светлый и уютный офис общей площадью 233.1 кв.м. н 7 этаже Бизнес Центра класса В в ЮЗАО, расположенного в пешей доступности от м Калужская и МЦК Зюзино. Прекрасная входная группа. Планировка - смешанная. Выполнена стандартная офисная отделка. Состояние офиса - до выезда арендатора. Относится к ИФНС 28. Юридический адрес предоставляется по запросу. Удобное транспортное расположение - выезд на ул. Профсоюзная, МКАД, Третье Транспортное Кольцо
Арт. 87499071






