Если цена в объявлении изменится, мы сразу сообщим вам об этом на электронную почту.
Нажимая «Подписаться», вы соглашаетесь с правилами.
продам дом, Кустарная, 3419 100 000 ₽
17 сен 2024
Дата публикации объявления
Обн. 13 мая
Дата обновления объявления
8
Количество просмотров (+ просмотры за сегодня)
95 500 ₽/м²
Чистая продажа
Термин "Чистая продажа" означает, что в квартире никто не прописан или
есть куда выписаться и вывезти вещи. Это лучший вариант для покупателя.
Вероятность срыва сделки минимальна.
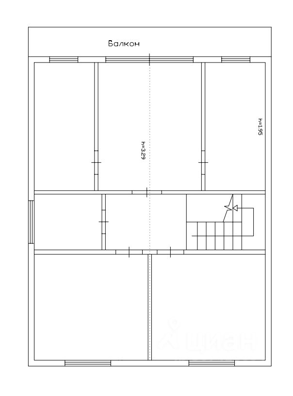
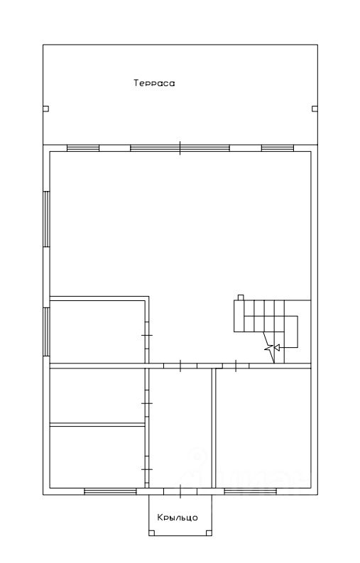
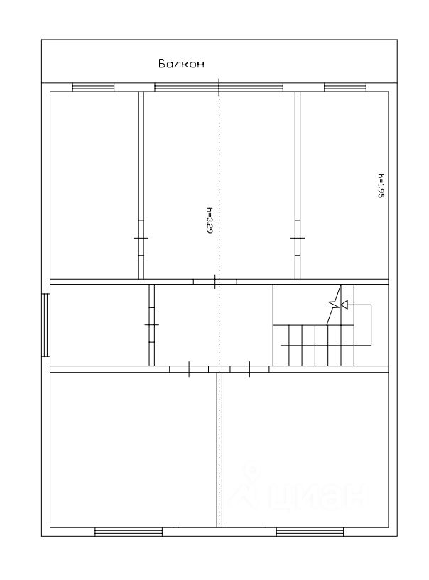
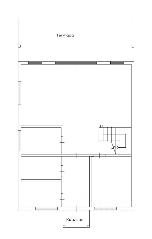
Этажей2
Площадь участка8,28 соток
Общая площадь200 м2
Материал домадерево
ЭлектричествоЕсть
Газоснабжениецентральное
Могу быть не на связи, лучше сначала пишите! По-настоящему экологически чистый дом, без каких-либо вредных выбросов. Дом монолитный, построен из клееного бруса шириной 20 см, что достаточно для круглогодичного проживания. Интересная планировка: на первом этаже расположены просторные прихожая, бойлерная-постирочная, гардеробная, ванная комната, кабинет-спальня и выдающаяся зона кухни, с барной стойкой и островом, которая совмещена с гостиной. Имеется доступ на террасу. На втором этаже находятся общий санузел и три спальни, одна из которых мастер-спальня с собственными ванной комнатой и гардеробной, а также доступом на балкон. Практически каждая комната оснащена окнами внушительного размера.
Могу быть не на связи, лучше сначала пишите! По-настоящему экологически чистый дом, без каких-либо вредных выбросов. Дом монолитный, построен из клееного бруса шириной 20 см, что достаточно для круглогодичного проживания. Интересная планировка: на первом этаже расположены просторные прихожая, бойлерная-постирочная, гардеробная, ванная комната, кабинет-спальня и выдающаяся зона кухни, с барной стойкой и островом, которая совмещена с гостиной. Имеется доступ на террасу. На втором этаже находятся общий санузел и три спальни, одна из которых мастер-спальня с собственными ванной комнатой и гардеробной, а также доступом на балкон. Практически каждая комната оснащена окнами внушительного размера. Особое внимание заслуживают панорамные окна в общей зоне кухни-гостиной, что помогает сделать пространство более светлым и создать особую атмосферу уюта. Коммуникации: центральное водоснабжение от поселка, как и электричество заведены в дом и сделаны разводки по всем комнатам и мокрым точкам. Большой септик подключён. Отвод газовой трубы заведён на участок, можно без проблем подключиться. Крыша сделана из фальцевой кровли, которая не будет шуметь во время дождя. На данный момент работы по дому продолжаются, поэтому цена будет расти. Строительством и текущим ремонтом занимаются строители из России по договорам с гарантиями, так что будущий владелец может с ними договориться о полной отделке. Участок 8.28 соток расположен в живописном и тихом районе Новой Москвы, в непосредственной близости от которого располагаются раскидистые леса и пруды. Участок находится в обжитом КП. Школа, больница и все необходимые учреждения в соседнем посёлке. Также строится большая современная школа на 6000 детей. Школьный автобус курсирует прямо до центральных ворот. Нет толпы строителей и шума. Дом зарегистрирован как жилой, с возможностью прописки в Москве. Я собственник. Риелторам прошу беспокоить только при наличии клиента. Станьте счастливым обладателем этого прекрасного дома в Новом году!