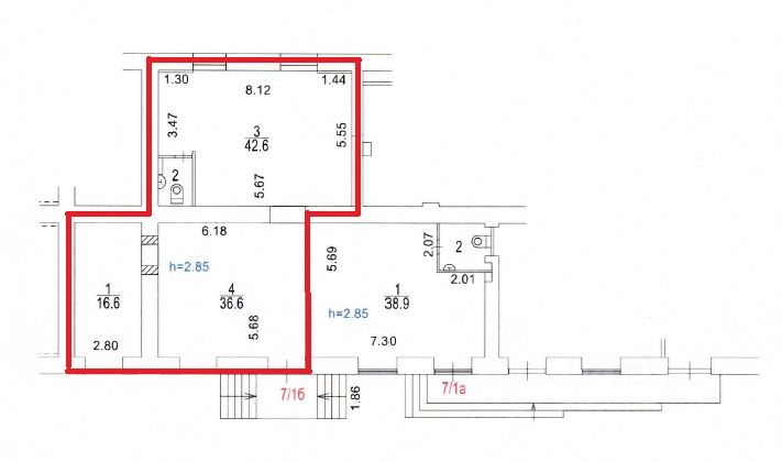
Помещение 98,6 м2, 1 этаж, у метро Вавиловская, Москва, Ленинский пр., 81/2.
Высокий рекламный потенциал и возможность размещения вывесок.
Интенсивные автомобильный и пешеходный потоки.
Развитая инфраструктура. Престижный жилой район, респектабельный сталинский жилой фонд и новостройки бизнес-класса.
Свободная парковка перед фасадом помещений.
Выделенная мощность на помещение: 0,2 кВт на кв.м.




