Термин "Чистая продажа" означает, что в квартире никто не прописан или
есть куда выписаться и вывезти вещи. Это лучший вариант для покупателя.
Вероятность срыва сделки минимальна.
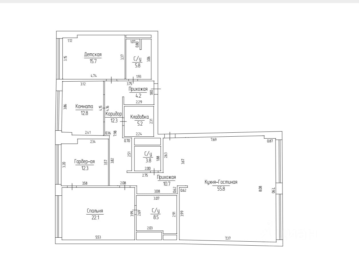
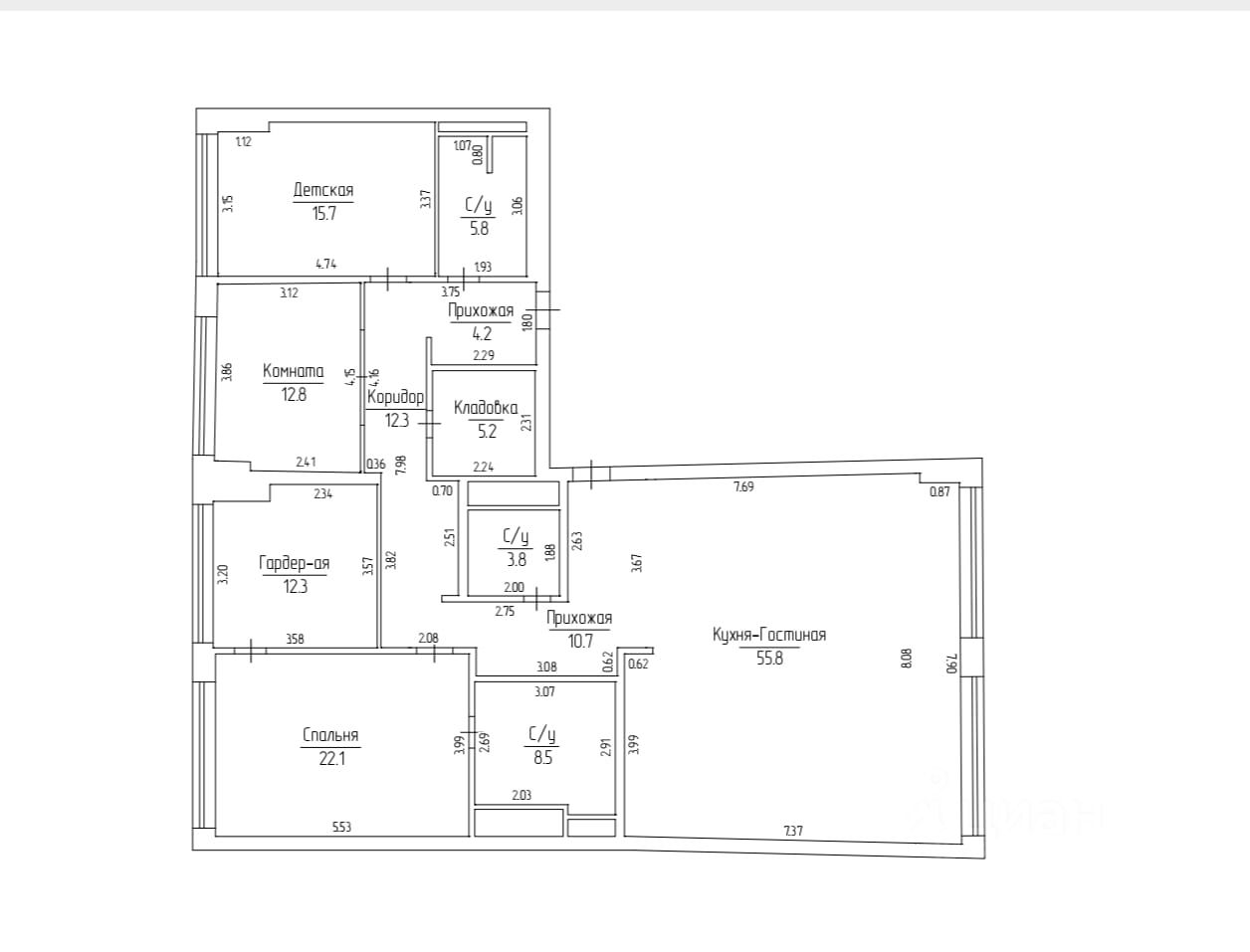
Стильная и функциональная квартира с авторским ремонтом в жилом квартале бизнес-класса ЛИЦА! Продуманное планировочное решение: - Просторная кухня-гостиная 40м2, - Мастер блок: Спальня 1 - 25 м2 со своей ванной и гардеробной, - Спальня 2 - 20 м2 с ванной, - Спальня 3 - 19 м2 с кабинетом или детской, - Постирочная - 4 м2, - гостевой санузел.
Стильная и функциональная квартира с авторским ремонтом в жилом квартале бизнес-класса ЛИЦА! Продуманное планировочное решение: - Просторная кухня-гостиная 40м2, - Мастер блок: Спальня 1 - 25 м2 со своей ванной и гардеробной, - Спальня 2 - 20 м2 с ванной, - Спальня 3 - 19 м2 с кабинетом или детской, - Постирочная - 4 м2, - гостевой санузел. Функциональный дизайн-проект с использованием высококачественных материалов из дерева в приятных натуральных оттенках со светлыми элементами декора в шпоне, - Все двери скрытого монтажа в потолок, - Установлены инновационные и современные виды тонких вентиляционных диффузоров (решётки), встроенное кондиционирование и приточная вентилияция, - Дизайнерская мебель - Диван и кровати Mbel & Zeit с матрасами King Koil , - Встроенная бытовая техника класса люкс (Miele, Kuppersbuch, Liebherr, Faber) - Все абсолютно новое, на гарантии, - Много сценариев освещение для создания Вашего собственного настроения, - В ванной и гостевом санузле установлена брендовая и качественная сантехника (Villeroy & Boch, Geberit и Grohe). - Большая светлая кухня-гостиная Scavolini и Riflessi, в которой предусмотрен остров с варочной панелью и вытяжкой.
- В квартире никто не проживал. Район для комфортной жизни в современном ритме большого города: - 5 минут до Тверской, - 4 станции метро в пешей доступности, - 9 минут до центра города, - 20 минут до аэропорта Шереметьево, - 4 парка: ультрасовременный Ходынский парк (250 м), Петровский (750 м), Чапаевский (1,4 км), Березовая роща (1,5 км), Тимирязевский (1,5 км), - Спортивная, развлекательная и торговая инфраструктуры поблизости. Инфраструктура ЖК ЛИЦА: - Подземный паркинг с кладовыми и собственной автомойкой, - Фитнес-клуб Encore Fitness со СПА-салоном и бассейном, - Детская площадка и воркаут-зона на стилобате.