Сдам помещение в густонаселенном районе марьино, в 10мин. пешком от м.Братиславская.
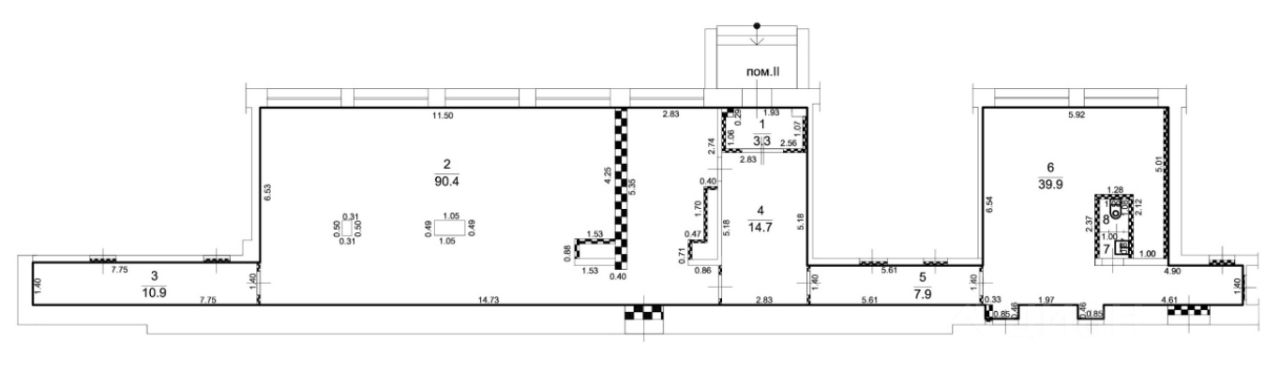
Помещение расположено в 1-этажном торгово-административном здании, с отдельными входом. Сосед - пятерочка.
Помещение можно использовать под любой вид деятельности, в т.ч. субаренду для мелкого бизнеса.





