Если цена в объявлении изменится, мы сразу сообщим вам об этом на электронную почту.
Нажимая «Подписаться», вы соглашаетесь с правилами.
продам дом, Алешинская Долина, 38а40 000 000 ₽
3 янв 2024
Дата публикации объявления
Обн. 14 мая
Дата обновления объявления
3
Количество просмотров (+ просмотры за сегодня)
166 667 ₽/м²
Чистая продажа
Термин "Чистая продажа" означает, что в квартире никто не прописан или
есть куда выписаться и вывезти вещи. Это лучший вариант для покупателя.
Вероятность срыва сделки минимальна.
Этажей2
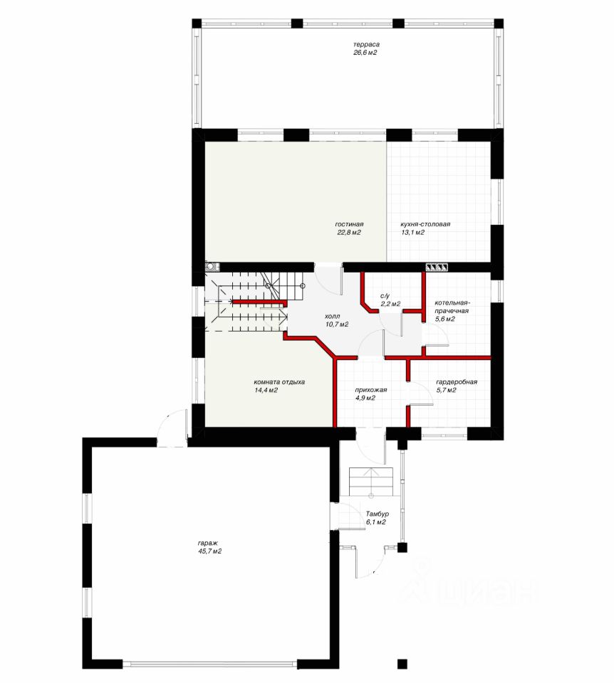
Площадь участка5 соток
Общая площадь240 м2
ЭлектричествоЕсть
Газоснабжениецентральное
Двухэтажный дом в Москве в КП ''Марсель'' в 30 км от МКАД по калужскому шоссе. Дом из пенобетонных блоков, дополнительно утеплен мин.ватой, монолитные железобетонные перекрытия. Все коммуникации центральные (газ, водоснабжение, канализация, электроснабжение), газовое отопление (теплый пол во всем доме). 1 этаж: кухня-гостиная с дровяным камином, отапливаемый гараж на 2 машины, отапливаемая терраса с СПА-бассейном, комната отдыха с сауной, прихожая, гардеробная, котельная-постирочная. 2 этаж: мастер-спальня с гардеробной, с/у и большим балконом с видом на лес, 3 комнаты, с/у. Высота потолков 3 м. На участке сделан дренаж, рулонный газон, по периметру живая изгородь из туй. Участок граничит с лесом, (есть свой выход), отличная экология.
Двухэтажный дом в Москве в КП ''Марсель'' в 30 км от МКАД по калужскому шоссе. Дом из пенобетонных блоков, дополнительно утеплен мин.ватой, монолитные железобетонные перекрытия. Все коммуникации центральные (газ, водоснабжение, канализация, электроснабжение), газовое отопление (теплый пол во всем доме). 1 этаж: кухня-гостиная с дровяным камином, отапливаемый гараж на 2 машины, отапливаемая терраса с СПА-бассейном, комната отдыха с сауной, прихожая, гардеробная, котельная-постирочная. 2 этаж: мастер-спальня с гардеробной, с/у и большим балконом с видом на лес, 3 комнаты, с/у. Высота потолков 3 м. На участке сделан дренаж, рулонный газон, по периметру живая изгородь из туй. Участок граничит с лесом, (есть свой выход), отличная экология. Дом расположен в прибрежной зоне поселка, рядом с набережной и спортивными площадками. КП ''Марсель'' расположен на берегу озера Никольское со своим пляжем. В поселке магазин, кафе, частный детский сад и начальная школа, охрана ЧОП, видеонаблюдение, 5 детских площадок, оборудованная набережная с прогулочной зоной, футбольное поле, баскетбольная и волейбольная площадки, 2 спортивные площадки, зимой заливается каток. Низкие тарифы за ЖКУ. Хорошая транспортная доступность, до МКАД 30 минут на автомобиле, рядом зоопарк и кинопарк Москино. в 2027 г. планируется открытие метро в г. Троицк, в 2029 г. в Москино.