Офисное помещение
Новохохловская, 29 Показать на карте
Новохохловская, 29 Показать на карте
Новохохловская, 5 мин
Москва
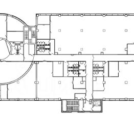
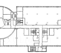
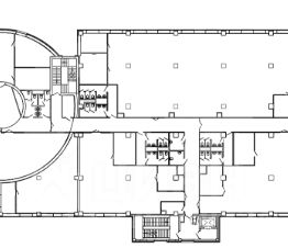
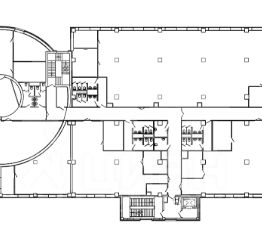
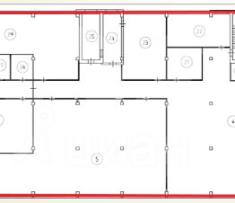
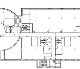
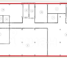
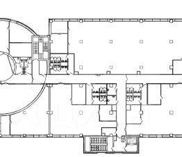
Экономьте до 3 недель на переезде - бесплатно разработаем планировку под вашу команду с неограниченными правками.Офис 1 996 м² на 250-443 рабочих мест*, без комиссии, договор напрямую с собственником. Открыты к диалогу по условиям аренды.Ключевые параметры:Площадь: 1 996 м².Рабочие места: 250-443*.Планировка: смешанная.Состояние: дизайнерский ремонт.Этаж: 5 из 9.Налоговая: 22.Метро рядом: м. Новохохловская в 1 минуте пешком, м. Нижегородская в 15 минутах пешком, м. Нижегородская в 15 минутах пешком. Инженерные системы:Вентиляция: приточно-вытяжная.Кондиционирование: центральное.Охрана: круглосуточная охрана здания.Бизнес-центр Ринг Парк класса B расположен у станции МЦД Новохохловская с быстрым выездом на ТТК и МСД. Наземная парковка на 300 мест решает вопрос для автомобилистов. В здании работают кафе, ресторан, банкомат и продуктовый магазин. В шаговой доступности расположен ТЦ ''Город''. Бизнес-центр оборудован современными инженерными системами и 4 пассажирскими лифтами. Юридические адреса обслуживаются в налоговой 22.Коммерческие условия:Арендная плата: 5 821 667 руб./мес.Ставка: 35 000 руб./м²/год (включая эксплуатацию).Налогообложение: включая НДС.Коммунальные расходы: оплачиваются по факту.Тип аренды: прямая аренда.Без комиссии.Почему с нами удобно:Подбираем альтернативные варианты под ваш запрос.Позвоните сейчас - организуем просмотр в день обращения и подготовим 2-3 альтернативных варианта под ваш бюджет и задачи.Также бесплатно:Разработаем планировку под вашу команду.Рассчитаем оптимальную рассадку.Подготовим детальную презентацию по объекту и аналогам.*Количество рабочих мест рассчитано автоматически: от 4,5 до 8 м² на человека.
1996 м2
- Показать контакты
- Добавить в избранное
1996 м2
5 821 667 /мес.
2 916 /м2
