Офисное помещение
Пресненская набережная, 10с Показать на карте
Пресненская набережная, 10с Показать на карте
Шелепиха, 15 мин
Москва
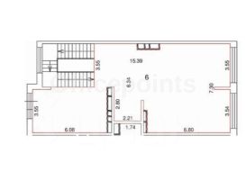
Сдается в аренду офисное помещение на 7 этаже в БЦ Башня на Набережной, А+ класса, который находится по адресу: Пресненская наб., д. 10С. Без комиссии для Арендатора!ЛОКАЦИЯ: Шаговая доступность от станций метро Москва-Сити, Деловой центр. Удобный выезд на ТТК.ПОМЕЩЕНИЕ: В помещении выполнена отделка, смешанная планировка. Центральная система кондиционирования, приточно-вытяжная система вентиляции. В наличии подземная парковка. Арендные каникулы и ставка подлежат обсуждению.Звоните, отвечаем по будням с 09:00 до 18:00, а в другое время передадим Ваш контакт нашему менеджеру!
860 м2
- Показать контакты
- Добавить в избранное
860 м2
6 994 667 /мес.
8 133 /м2
