Офисное помещение
Новохохловская, 29 Показать на карте
Новохохловская, 29 Показать на карте
Новохохловская, 5 мин
Москва
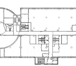
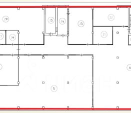
Экономьте время и деньги: отрисуем планировку под вас бесплатно, с любым количеством правок. Предлагаем в аренду Офис в бизнес-центре ''Ринг Парк'' по адресу: г Москва, ул Новохохловская, д 29.Рабочих мест: от 513 до 910*.Площадь: 4 097 м2.Планировка: смешанная.Состояние: готовность к въезду с.Ставка (включая эксплуатацию): 32 753 руб. за м2/год.Арендная плата: 11 182 500 руб./мес.Налог: включая НДС.Коммунальные расходы: оплачиваются по факту.Этаж: 2, 7, 9 из 9.Тип аренды: Прямая аренда.Охрана: круглосуточная охрана здания.Метро рядом: м. Новохохловская в 1 минуте пешком, м. Нижегородская в 15 минутах пешком, м. Нижегородская в 15 минутах пешком. Этот адрес обслуживает налоговая 22. Парковка наземная.Системы здания:Вентиляция: приточно-вытяжная.Кондиционирование: центральное.Пожарная сигнализация: спринклерная система.Этот лот состоит из нескольких помещений: 1314 кв. м., 787 кв. м. и 1996 кв. м.>ID объекта - 016207.*Количество рабочих мест рассчитано автоматически: от 4,5 м2 на человека до 8 м2 на человека.Почему клиенты доверяют нам?1. 12000 объектов коммерческой недвижимости Москвы и Области, включая эксклюзивные и внерыночные.2. Работаем без комиссии и скрытых платежей. Вы заключаете договор напрямую с собственником.3. Профессиональное сопровождение: консультации на каждом этапе, помощь в подборе оптимального решения для вашего бизнеса.4. 17 лет опыта в коммерческой недвижимости.Не тратьте время, доверьте поиски нам! Позвоните, и мы оперативно организуем просмотр или подготовим подборку объектов.
4097 м2
- Показать контакты
- Добавить в избранное
4097 м2
11 182 500 /мес.
2 729 /м2
