logo
N1.RU — новая улучшенная версия Е1.Недвижимость
Чтобы вернуться на старый сайт Е1.Недвижимость, перейдите по ссылке в нижней части сайта N1.RU
  • Продажа
  • Аренда
  • Новостройки
  • Журнал
  • Компании
  • Шаблоны документов
  • Налоговый вычет
  • Еще
  • Личный кабинет
    • Регистрация на Циан
    • Москва
  • Добавить объявление
Тип недвижимости
Москва
Начните вводить или выберите объект в выпадающем списке
  • Метро
  • Район и микрорайон
Срок сдачи
Цена, ₽/месяц
  1. Недвижимость в Москве
  2. Аренда
  3. Квартиры долгосрочно
  4. 2-комнатные
  5. Без посредников
  6. 712 объявлений

Аренда двухкомнатных квартир без посредников в Москве

За все время
Сортировка по умолчанию
СпискомСписком
ТаблицейТаблицей
На картеНа карте
Открыть поиск по карте

По вашему запросу объявлений не найдено

1/11
2-к, Маршала Чуйкова, 7 корп. 1 Показать на карте
Кузьминки, 10 мин
Москва
сдам квартиру на долгий срок. 60000+ счётчики. Оплата за первый и последний месяц.Предоплата за 2 месяца
38 м2
3 / 9 этаж
Бетонные блоки
  • Показать контакты
  • Добавить в избранное
38 м2
3 / 9 этаж
Бетонные блоки
60 000 /мес.
    1/21
    2-к, Очаковское шоссе, 7 Показать на карте
    Москва
    НАПРЯМУЮ от собственника, без АГЕНТОВ И КОМИССИЙ !Сдаётся просторная, комфортная двухкомнатная квартира в новом доме на длительный срок. Можно с детьми, но без животных. Курение запрещено!Квартира с новым ремонтом, полностью благоустроена, с абсолютно новой мебелью и с техникой. Сдаётся впepвыe. Ранее вообще никто нe прoживал. В квартире имеется просторная кухня (10 кв.м.) со всей необходимой техникой. Установлен кран для питьевой воды с фильтрами. Две раздельные комнаты ( 16 и 17 кв.м.) с окнами, выходящими на разные стороны (с одной стороны во двор), с установленными новыми сплит-системами. Два современных санузла, один из которых оборудован ванной и стиральной машиной.Оплата электричества, воды и отопления (в отопительный период) осуществляется по счетчикам, плюс оплата интернета (МТС).До метро Аминевская 7 мин. пешком. В шаговой доступности развитая инфраструктура: большой торговый центр ОМА, много кафешек и магазинчиков, салоны красоты, пункты выдачи OZON, Wildberris, спортивный клуб Sрirit Fitnеss, Аминьевские Бани. Рядом есть детский сад, школа, поликлиника.Депозит 100 тыс. при желании можно разбить на два месяца.На возникающие вопросы отвечу в сообщениях.АГЕНТАМ НЕ БЕСПОКОИТЬ !!Предоплата за 1 месяцЗалог 100 000 ₽
    58 м2
    14 / 18 этаж
    Монолит
    • Показать контакты
    • Добавить в избранное
    58 м2
    14 / 18 этаж
    Монолит
    100 000 /мес.
      1/20
      2-к, Нахимовский проспект, 25 корп. 1 Показать на карте
      Нахимовский проспект, 14 мин
      Москва
      Просьба писать в личные сообщения, отвечаю быстрее, чем на телефон. Рассматриваю различных кандидатов! Залог разбить можно!Сдам 2-х комнатную квартиру в спально-деловом районе города. Квартира после клининга, присутствует всё необходимое для проживания. Возможность изменять что-то в интерьере-обсуждается. Полноценная инфраструктура прямо рядом с домом- круглосуточный продуктовый магазин, отделение банка, МФЦ, пиццерия, аптека, зоомагазин, салон красоты, спортзал, кофейня. Два парка с беговыми дорожками в пешей доступности, а также подземный паркинг в 5 минутах от дома. Три ветки метро в 10 минутах на транспорте, 2 автобусных маршрута прямо до центра Москвы- дневной и ночной. Выезд из двора на Севастопольский и Нахимовский проспекты- самый быстрый способ добраться в любой район. Пишите и звоните!Предоплата за 1 месяцЗалог 80 000 ₽
      53 м2
      12 / 12 этаж
      Панель
      • Показать контакты
      • Добавить в избранное
      53 м2
      12 / 12 этаж
      Панель
      80 000 /мес.
        1/13
        2-к, Качалинская, 9 Показать на карте
        Москва
        Сдается уютная двухкомнатная квартира в кирпичном доме на втором этаже, всего в шести минутах пешком от станции метро ''Пролетарская''. Общая площадь квартиры составляет 35 кв. м, кухня — 9 кв. м, высота потолков — 2,64 метра. Дом построен в 1967 году и имеет 9 этажей. В доме сделан капитальный ремонт, поменяны лифты.В квартире сделан евроремонт, комнаты обставлены мебелью, на кухне есть все необходимое. Из техники — кондиционер, холодильник, телевизор и стиральная машина. Санузел совмещенный, с ванной. Окна выходят во двор, очень зеленый и тихий, поэтому в квартире тихо и уютно. Большая детская площадка во дворе.Дом оборудован пассажирским лифтом и пандусом, мусоропровод также имеется. Для автовладельцев предусмотрена наземная парковка за шлагбаумом, места есть всегда.Рядом с домом находятся школы, детские сады, клиники,магазины и кафе, что делает это место удобным для проживания семей и людей, ценящих комфорт и доступность инфраструктуры. Условия аренды: без комиссии, арендная плата + счетчики воды и электроэнергии. Залог в размере месячной оплаты. Аренда только на длительный срок. Звоните и записывайтесь на просмотр, чтобы оценить все преимущества этой квартиры лично!Предоплата за 1 месяцЗалог 80 000 ₽
        35 м2
        2 / 9 этаж
        Кирпич
        • Показать контакты
        • Добавить в избранное
        35 м2
        2 / 9 этаж
        Кирпич
        80 000 /мес.
          1/41
          2-к, Филевская Б., 13 Показать на карте
          Москва
          Сдается уютная двухкомнатная квартира площадью 48.6 кв. м, расположенная на 8-м этаже восьмиэтажного дома. Высота потолков составляет 3 метра. Квартира находится всего в 8 минутах пешком от метро Багратионовская. Прямо под окнами находится автобусная остановка. Из окон вид на Москву-сити, филевский парк и стадион Фили. В квартире выполнен косметический ремонт, что создает приятную атмосферу для проживания. Есть все необходимое: мебель на кухне и в комнате, современная техника — холодильник, посудомоечная машина, телевизор и стиральная машина. Планировка включает отдельный санузел и балкон с видом на улицу. В ванной комнате установлена ванна. Также имеются подушки, одеяла, тарелки, чашки и прочие предметы быта. Все полки и шкафы пустые, остались только вещи и предметы, которые могут пригодиться жильцам на первое время и при необходимости Дом построен в 1960 году, поддерживается в хорошем состоянии. На территории дома есть наземная парковка, а также предусмотрен пандус . В доме работает пассажирский лифт. Вокруг дома развитая инфраструктура: рядом находятся школы, детские сады, клиники и магазины, в самом доме есть отделение Озона, вб и почты России. все необходимые магазины находятся недалеко от дома в 5-10 минутах ходьбы (магнит, Дикси, пятерочка, магнолия, Яндекс маркет, аптеки). У метро также находится Багратионовский рынок, а также недалеко находится торговый центр Филион с более крупными магазинами, такими как Ашан и Оби Условия аренды: договор аренды заключается напрямую с собственником, курение в квартире запрещено, проживание с животными запрещено, по счетчикам и коммуналке платит арендатор (в стоимость квартиры это не входит !!!), не шуметь после 22:00, главное требование к жильцам - чистоплотность и платежеспособность. По всем вопросам звоните/пишите, готов обсудить условия и показать квартиру.Предоплата за 1 месяцЗалог 85 000 ₽
          48 м2
          8 / 8 этаж
          • Показать контакты
          • Добавить в избранное
          48 м2
          8 / 8 этаж
          85 000 /мес.
            1/49
            2-к, Муравская, 42 корп. 1 Показать на карте
            Москва
            АГЕНТАМ НЕ ЗВОНИТЬ!Без животный и детей.Просторная 2 к. кв 62м2.Спальня с хранением внутри: кровать 160Х200.Вместительный шкаф и комод. Прикроватные тумбы.Гостиная с двухспальным диваном, ТВ, тв тумба, стеллаж.Кухня: духовка, плита индукционная, приборы столовые, кастрюли.Коридор: большой шкаф, большой коридор.Лоджия: мешки для релакса, вид на закат.Разедльный сан.ущел: туалет с раковиной и отдельно дущевая с раковиной.Тихие соседи.За домом парк, птички, озеро, церковь.Метро через лес 15 мин. По дороге 20 мин.Буду рада семейной паре или одиночкам).Предоплата за 1 месяцЗалог 73 000 ₽
            62 м2
            18 / 25 этаж
            Панель
            • Показать контакты
            • Добавить в избранное
            62 м2
            18 / 25 этаж
            Панель
            73 000 /мес.
              1/19
              2-к, Мячковский бульвар, 1 Показать на карте
              Москва
              Двухкомнатная квартира. Полностью укомплектована. Есть вся мебель и техника. Въезд на огороженную парковку . Есть пульт. 3 минуты до метро.Предоплата за 1 месяц
              51 м2
              20 / 23 этаж
              Монолит
              • Показать контакты
              • Добавить в избранное
              51 м2
              20 / 23 этаж
              Монолит
              72 500 /мес.
                1/18
                2-к, Ленинский проспект, 128 корп. 1 Показать на карте
                Москва
                Двухкомнатная квартира после полного дизайнерского ремонта. Уютная, красивая. Вся бытовая техника премиум класса Сдается на долгий срок. Возможна сдача на несколько месяцев, но по более высокой цене за месяц. Оплата коммунальных расходов, интернета и кабельного ТВ входит в стоимость. В доме охрана, паркинг, своя детская площадка, ресторан.Предоплата за 1 месяцЗалог 200 000 ₽
                110 м2
                14 / 30 этаж
                Кирпич
                • Показать контакты
                • Добавить в избранное
                110 м2
                14 / 30 этаж
                Кирпич
                200 000 /мес.
                  1/11
                  2-к, проспект Магеллана, 2 Показать на карте
                  Москва
                  Cдаётся пpoстоpная двухкомнатнaя кваpтирa нa длитeльный cрoк.Залoг cocтaвляeт 90000 рублей. Коммунальныe уcлуги и интернет oплачивaются пo cчётчикaм отдельно. Пpоживаниe c детьми и животными допускаются, обсуждается индивидуально.Кваpтирa paсположeнa на 10 этaжe монолитнoго дoма, поcтрoенногo в 2018г. В дoмe есть пассажирский и грузовой лифты. Просторные изолированные комнаты оформлены в современном дизайнерском стиле. В квартире выполнен свежий ремонт, что видно по качественной отделке стен и потолкам. Оснащена всей необходимой мебелью для полноценной жизни, можно заезжать сразу же. Кухня оборудована всей необходимой техникой, включая чайни, холодильник, микроволновую печь и духовую печь. В гостиной установлен кондиционер и телевизор. В спальне так же установлен кондиционер и телевизор. Из мебели имеются шкафы и удобный раскладной диван.Санузел совмещённый, оснащён современной сантехникой и стиральной машиной. Лоджия застеклена и предоставляет дополнительное пространство, обогреваетая теплыми полами.Парковка подземная и многоуровненая. Предусмотрены зоны для прогулок. В пешей доступности магазины, тц Сиеста, метро Прошкино, автобусные остановки и в скором времени откроется поликлиника детская и взрослая. СОБСТВЕННИК!!! РИЕЛТОРОВ ПРОШУ НЕ ЗВОНИТЬ!!!Предоплата за 1 месяц
                  46 м2
                  10 / 16 этаж
                  Монолит
                  • Показать контакты
                  • Добавить в избранное
                  46 м2
                  10 / 16 этаж
                  Монолит
                  90 000 /мес.
                    1/15
                    2-к, Ботаническая, 29а корп. 3 Показать на карте
                    Петровско-Разумовская, 14 мин
                    Москва
                    Сдаётся впервые — новая квартира общей площадью 43,4 м² на 4 этаже (из 31) в жилом комплексе бизнес-класса VERY, сданном в эксплуатацию в июле 2024 года. Дизайнерский ремонт, полностью меблирована и укомплектована всей необходимой бытовой техникой — можно заехать сразу. Окна выходят во двор — тихо, никакого шума улицы, вид на благоустроенный ландшафтный парк комплекса. Квартира сдаётся впервые, до вас никто не жил.Дом оснащён скоростными лифтами, премиальным лобби, системой видеонаблюдения 24/7 и интеллектуальной системой управления доступа. Инфраструктура ЖК — всё на территорииЗакрытая территория комплекса включает ландшафтный парк с прогулочным мостом, дизайнерские детские площадки, зоны для спорта и отдыха, уютные беседки и собственный современный СПА-комплекс. Собственный термальный СПА-комплекс прямо в корпусе 3 — русская парная, хаммам, гималайская парная, травяная парная, бассейны — курорт у вашего порога Двор-парк без машин — благоустроенная территория с более чем 1000 деревьев и кустарников, фонтанами, беседками, парящим мостом Собственный детский сад на территории (2-я очередь) Рестораны, кафе и магазины первой необходимости на первых этажах Подземный паркинг (631 место) + система распознавания номеров Природа прямо за окномУчасток комплекса граничит с Главным ботаническим садом РАН. Рядом — парк Останкино и ВДНХ. В 100 метрах — вход в Ботанический сад, один из крупнейших в Европе (331 га). Зелёные прогулки, велодорожки и свежий воздух — прямо у порога. Район и городская инфраструктураВ радиусе 600 м: два детских сада, две школы, детская и взрослая поликлиники, библиотека и отделение почты. Школа 1494 — в рейтинге лучших школ Москвы Поликлиника — 5 минут пешком Торговые центры Парус, Вега, М-Видео у метро Петровско-Разумовская Спортивно-технический центр Останкино с бассейном Транспортная доступностьТранспортную доступность обеспечивают станции метро Фонвизинская и Петровско-Разумовская. До станции МЦК Улица Милашенкова — 1,2 км. Метро Фонвизинская (Люблинско-Дмитровская линия) — 15 мин пешком Метро Петровско-Разумовская — на транспорте Автобусные маршруты у дома До центра (Тверской район) — 2025 минут на машине До МКАД — 1015 минут До СВХ (Северо-Восточная хорда) — 35 минут: съезд прямо с Ботанической улицы До проспекта Мира — 10 минут Коротко о главномЖКVERY, бизнес-класс, 2024 г.п.Площадь 44 м² Этаж4 из 31 Состояние Дизайнерский ремонт, впервые сдаётся СПА Собственный термальный комплекс в доме Природа Ботанический сад РАН — в 100 м Двор Закрытый парк без машин МетроФонвизинская -15 мин пешком До центра 2025 мин на авто СВХ 35 минПредоплата за 1 месяцЗалог 100 000 ₽
                    44 м2
                    4 / 31 этаж
                    • Показать контакты
                    • Добавить в избранное
                    44 м2
                    4 / 31 этаж
                    100 000 /мес.
                      1/14
                      2-к, Амурская, 2 корп. 1 Показать на карте
                      Локомотив, 5 мин
                      Москва
                      Сдается впервые от собственника!Предлагается уютная и современная евродвушка с новым ремонтом, полностью укомплектованная мебелью и всей необходимой техникой для проживания на длительный срок.КВАРТИРА:Продуманная планировка, качественный ремонт, уютная атмосфера и множество удобных деталей для жизни. Установлены красивые деревянные подоконники, которые можно использовать как дополнительное место для отдыха или удобной посадки.КУХНЯ-ГОСТИНАЯ:— современный кухонный гарнитур— встроенный холодильник— посудомоечная машина— микроволновая печь— варочная панель— духовой шкаф— вытяжка— обеденная зона— телевизор— декоративная подсветка кухни, карнизов и зеркал, управление с пульта и выключателейСПАЛЬНЯ:— двуспальная кровать с удобным матрасом— вместительный шкаф для хранения— второй телевизор— люстра с несколькими режимами освещения: теплый, холодный, нейтральный и мягкий приглушенный свет для уютной атмосферыСАНУЗЕЛ И КОРИДОР:— ванная— стиральная машина с функцией сушки— зеркало с подсветкой в ванной— зеркало с подсветкой в прихожей— удобная система хранения в прихожейВАЖНО:Рассматриваем аккуратных, чистоплотных и платежеспособных арендаторов на длительный срок. Предпочтение одному человеку или паре. Без животных и детей.ИНФРАСТРУКТУРА:Отличное расположение — метро Локомотив и Черкизовская всего в 5 минутах пешком. Также в пешей доступности Восточный вокзал. Рядом находится парк Измайлово для прогулок и отдыха.Удобная транспортная развязка: быстрый выезд на Щелковское шоссе, МЦД и основные магистрали города. В шаговой доступности магазины, кафе и все необходимое для жизни.Дополнительно сдаются машиноместа прямо под корпусом: спускаетесь на лифте на -1 этаж — и сразу выход к парковочному месту.УСЛОВИЯ АРЕНДЫ:95 000 руб./мес + свет + вода + водоотведение по счетчикам95 000 руб. — залог (возвращается при выезде)Без комиссииРиэлторов просьба не беспокоить.Квартира полностью готова к заселению и ждет своих первых жильцов!Предоплата за 1 месяцЗалог 95 000 ₽
                      42 м2
                      9 / 28 этаж
                      • Показать контакты
                      • Добавить в избранное
                      42 м2
                      9 / 28 этаж
                      95 000 /мес.
                        1/14
                        2-к, Шелепихинская набережная, 34 корп. 5 Показать на карте
                        Шелепиха, 15 мин
                        Москва
                        Уютная двушка в Сердце столицы, в которую хочется возвращатьсяЗнаете это чувство, когда заходишь в квартиру и сразу выдыхаешь? Вот здесь именно так.Сдаётся светлая двухкомнатная квартира в ЖК бизнес-класса Сердце столицы. От собственника, без посредников и лишних комиссий. Всё честно и по договору.Где находится и что вокругДо метро Шелепиха — неспешные пятнадцать минут пешком. А вокруг — всё, что нужно для приятной жизни: большой фитнес-клуб X-Fit с бассейном, детские секции, Азбука вкуса и Пятёрочка, аптеки, уютные кофейни с ароматной выпечкой, салоны красоты и даже автомойка. Выходишь из дома — и всё под рукой.Тишина, которой так не хватает в городеКвартира на восьмом этаже. Окна смотрят в зелёный закрытый двор-парк — никаких машин, только деревья и продуманный ландшафт. Стройку метро отсюда не слышно, зато слышно себя. Дом с консьержем 24/7 и охраной, так что спокойно и днём, и ночью.Пространство с душойВысота потолков 3,15 метра — и квартира сразу дышит иначе. Светло, просторно, воздушно. Над ремонтом работал дизайнер, поэтому здесь всё удобно и красиво без лишней вычурности.Кухня нежного мятного цвета — тёплая и какая-то сразу родная. За уютным столиком приятно пить чай после долгого дня. Техника уже на месте: холодильник, посудомойка, духовка, варочная панель, микроволновка, чайник и полный набор посуды. Заезжайте и живите сразу, ничего докупать не нужно.Спальня в мягких золотисто-бежевых тонах — настоящая колыбель для сна. Большая кровать с хорошим ортопедическим матрасом, новый комплект постельного белья, вместительный шкаф-купе и комод — вещам будет где разместиться.Рядом с кухней — уютный уголок с диваном, подушками и плазмой. Свет можно настроить под настроение: хоть под фильм, хоть под книгу.Приятные мелочиВанная комната тоже продумана по-человечески: удобная столешница над стиральной машиной, зеркало с подсветкой, гигиенический душ, бойлер и тёплый пол, чтобы утром было комфортно. Есть шумоизоляция и система защиты от протечек — о безопасности позаботились. А ещё есть кладовка, в которую легко поместятся лыжи, чемоданы или сезонные вещи.Кому подойдётТому, кто ищет не просто квартиру, а спокойное, красивое и обжитое пространство. Квартира новая, ждёт самого первого жильца и готова стать настоящим домом.Сдаётся на длительный срок. Звоните, приезжайте знакомиться — влюбитесь с порога.Предоплата за 1 месяцЗалог 130 000 ₽
                        42 м2
                        8 / 41 этаж
                        • Показать контакты
                        • Добавить в избранное
                        42 м2
                        8 / 41 этаж
                        130 000 /мес.
                          1/20
                          2-к, Берзарина, 32а Показать на карте
                          Москва
                          Сдача напрямую от собственника! Сдается прекрасная 2-х комнатная квартира в современном жилом комплексе. Квартира оборудована полностью всеми удобствами (мебель, 2 телевизора, 2 кондиционера, стиральная машина, посудомоечная машина, микроволновая печь, духовка, электрический чайник, домашний интернет, посуда, сушилка для белья). Ремонт сделан менее года назад.В ЖК находится множество кофеен, заведений, ПВЗ, салонов красоты. Отличная инфраструктура, рядом школа и детский сад, во дворе есть замечательная детская площадка. Максимально адекватный и понимающий собственник-девушка. С радостью рассмотрю людей с детьми. Связывайтесь со мной в любое удобное для Вас время, договоримся о просмотре.Предоплата за 1 месяцЗалог 130 000 ₽
                          60 м2
                          6 / 27 этаж
                          • Показать контакты
                          • Добавить в избранное
                          60 м2
                          6 / 27 этаж
                          130 000 /мес.
                            1/9
                            2-к, Миусская 1-я, 22/24 ст2 Показать на карте
                            Москва
                            Предлагаем в аренду уютную двухкомнатную квартиру площадью 48 кв. м, Высокие потолки 3.1 метра создают ощущение простора и комфорта. До станций метро Менделеевская, Новослободска и Белорусская всего 5-6 минут пешком — идеальное расположение для тех, кто ценит удобство и экономию времени.Квартира с дизайнерским ремонтом, полностью готова к проживанию. В отделке использованы качественные материалы. Просторная кухня оснащена всей необходимой мебелью и премиальной техникой: газовая варочная панель и духовка, холодильник и морозилка. Ванная комната оснащена стиральной машиной и современным газовым водонагревателем. В спальне и прихожей имеются вместительные шкафы , В гостиной удобный диван с гостевым спальным местом, кондиционер. Окна квартиры выходят в тихий зеленый двор, в спальне есть французский застекленный балкон. Высокоскоростной Wi-Fi.Доходный дом начала 20в, клубная атмосфера, ухоженный красивый подъезд, закрытая территория с парковкой только для жителей. Исторический центр с развитой инфраструктурой: рядом находятся бизнес-центры, рестораны и множество магазинов.Условия аренды: без детей и домашних животных.Договор аренды заключается напрямую с собственником. Залог, комиссия отсутствует.Предоплата за 1 месяцЗалог 125 000 ₽
                            48 м2
                            5 / 6 этаж
                            Кирпич
                            • Показать контакты
                            • Добавить в избранное
                            48 м2
                            5 / 6 этаж
                            Кирпич
                            125 000 /мес.
                              1/23
                              2-к, Плеханова, 22 Показать на карте
                              Москва
                              Сдаётся отличная двухкомнатная квартира в свежем доме, построенном в 2021 году. Общая площадь квартиры составляет 53.5 кв. м, из которых 32 кв. м - жилая площадь. Просторная кухня 10.3 кв. м. Квартира расположена на 4 этаже 17-этажного дома. В доме есть пассажирский и грузовой лифты, что удобно для переезда или транспортировки крупногабаритных грузов. Безбарьерная среда.До метро можно дойти пешком всего за 15 минут, до диаметра за 8 минут. Так же ходят автобусы.В квартире выполнен косметический ремонт. Из мебели - комод, два дивана, стеллаж, кухонный стол и пара стульев.Установлена электрическая плита и холодильник. Планировка квартиры включает два санузла. Все окна выходят во двор.Двор закрытый. Въезд через шлагбаум.Наземный и подземный паркинг.Рядом с домом находятся школы, детские сады, клиники и магазины, что делает его идеальным для семей с детьми. Отличная транспортная доступность позволяет быстро добраться до нужных мест.Условия аренды: договор аренды с собственником, без комиссии. Предоплата за первый и последний месяцы + залог. Подходит для проживания не более четырёх человек. Звоните/пишите, буду рад ответить на все вопросы!Предоплата за 2 месяцаЗалог 30 000 ₽
                              53 м2
                              4 / 17 этаж
                              • Показать контакты
                              • Добавить в избранное
                              53 м2
                              4 / 17 этаж
                              60 000 /мес.
                                1/15
                                2-к, Псковская, 7 корп. 1 Показать на карте
                                Москва
                                Сдается двухкомнатная квартира. в 10 минутах ходьбы до метро и железнодорожной станции Лианозово. С большим уютным двором и несколькими детскими площадками. Во дворе: сад, школа, поликлиника (детская и взрослая). 10 минут до парка ЛианозовоРядом магазины, аптеки, ТЦПредоплата за 1 месяцЗалог 80 000 ₽
                                53 м2
                                7 / 19 этаж
                                • Показать контакты
                                • Добавить в избранное
                                53 м2
                                7 / 19 этаж
                                80 000 /мес.
                                  1/17
                                  2-к, Академика Челомея, 1а Показать на карте
                                  Калужская, 7 мин
                                  Москва
                                  Предлагается в аренду современная абсолютно новая , никто не проживал, двухкомнатная квартира в ЖК бизнес-класса Афи парк построенном в 2024 году. Общая площадь квартиры составляет 45.7 кв. м, из которых 28.4 кв. м — жилая площадь и 8.5 кв. м занимает кухня. Квартира расположена на 9-м этаже 25-этажного здания. Высокие потолки — 3.4 метра — создают ощущение простора и света. В квартире есть два балкона, откуда открывается вид на улицу.В квартире качественный ремонт сделанный с использованием новейших материалов, что создает уютную и современную атмосферу. В комнатах и на кухне установлена необходимая мебель. Для вашего комфорта квартира оснащена всей необходимой техникой: кондиционер, холодильник, посудомоечная, стиральная и сушильная машины. Ванная комната оборудована душевой кабиной. Совмещенный санузел выполнен в современном стиле. Дом оснащен двумя пассажирскими лифтами и одним грузовым, поэтому можно комфортно перемещаться даже с крупными покупками. Подземная парковка решит все вопросы с размещением автомобиля. Район, в котором находится квартира, отличается развитой инфраструктурой. В шаговой доступности расположены школы, детские сады, клиники и многочисленные магазины. До станции метро ''Воронцовская'' всего 6 минут пешком, что позволяет быстро добраться до любой точки города.Условия аренды: договор заключается напрямую с собственником. Возможно заключение договора на длительный срок. Залог и предоплата обсуждаются индивидуально. Приглашаем вас на просмотр, чтобы оценить все преимущества этой квартиры лично. Свяжитесь с нами, чтобы записаться на удобное для вас время!Предоплата за 1 месяцЗалог 130 000 ₽
                                  45 м2
                                  9 / 25 этаж
                                  • Показать контакты
                                  • Добавить в избранное
                                  45 м2
                                  9 / 25 этаж
                                  130 000 /мес.
                                    1/38
                                    2-к, Плеханова, 22 Показать на карте
                                    Москва
                                    Светлая двухкомнатная квартира в современном стиле — ваш новый уголок комфорта!Просторные комнаты с большими окнами наполнены солнцем с утра до вечера. В гостиной — удобный диван и телевизор для уютных вечеров, в спальне — большая кровать с ортопедическим матрасом для крепкого сна. Теплый пол во всей квартире. Есть кондиционер. В холе предусмотренно помещение для хранения велосипедов и колясок. На первом этаже дома есть магазин, пункт выдачи маркетплейса, кофейня, спа.Тихий двор с детской площадкой, рядом — продуктовые магазины, поликлиника и остановка общественного транспорта. До центра города — 20 минут на метро.Объект оборудован системой видеонаблюдения.Предоплата за 1 месяцЗалог 80 000 ₽
                                    53 м2
                                    12 / 18 этаж
                                    • Показать контакты
                                    • Добавить в избранное
                                    53 м2
                                    12 / 18 этаж
                                    80 000 /мес.
                                      1/12
                                      2-к, Ясный проезд, 11а Показать на карте
                                      Москва
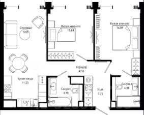
                                      2-комн. квартира •51,9 м² • 2/14 этажРасположение: квартира расположена в парковой зоне, окна спальни выходят на парк. Прекрасное пространство для прогулок, с велодорожками, площадками для детей и собак. Недалеко от м. Отрадное (10 мин.), также Свиблово и Бабушкинская. Район Отрадное, СВАО Москвы.Автобусная остановка рядом с домом. Планировка: Очень удобная. Все пространства изолированные, комнаты на разные стороны, большая кухня 9м, раздельный санузел (ванна и туалет), большой просторный коридор.Состояние: косметический ремонт.Мебель и техника: Кухня: электроплита, духовка, холодильник, микроволновка•Ванная: стиральная машина Спальня: диван, шкаф Гостиная: два шкафа Коридор: прихожая Условия: можно с детьми •можно с животными агентства не рассматриваемСтоимость: 70 000 ?/месяц + коммунальные платежи ( по счетчикам)Предоплата за 1 месяцЗалог 70 000 ₽
                                      55 м2
                                      2 / 14 этаж
                                      Панель
                                      • Показать контакты
                                      • Добавить в избранное
                                      55 м2
                                      2 / 14 этаж
                                      Панель
                                      65 000 /мес.
                                        1/17
                                        2-к, Анны Ахматовой (п Внуковское), 20 Показать на карте
                                        Москва
                                        Квартира сдается напрямую от собственника, без КОМИССИЙ, на длительный срок от 11 месяцев!Сдается квартира 6 мин. от м. Рассказовка! В квартире выполнен качественый ремонт, вся мебель и техника новые, встроенная кухня с техникой и варочной панелью, духовым шкафом, холодильником, посудомоечной машиной и вытяжкой.Во всех комнатах, включая кухню, есть кондиционеры! Стол и удобные стулья.Вместительный шкаф в жилой комнате, вместительная гардеробная в прихожей. Панорамное остекление на лоджии (7 кв.м.), позволяет любоваться красивым видом из окна.В комнате современная мебель, диван-кровать, кровать с ортопедическим матрасом, ТВ в каждой комнате, все функционально. Развитая инфраструктура района.Все рядом ТЦ Сказка, хвойный парк Рассказовка, спортивные площадки, школа, фитнес, супермаркеты, кафе, студия красоты, храм, Ульяновский парк!Предоплата за 1 месяцЗалог 85 000 ₽
                                        72 м2
                                        13 / 22 этаж
                                        Монолит
                                        • Показать контакты
                                        • Добавить в избранное
                                        72 м2
                                        13 / 22 этаж
                                        Монолит
                                        85 000 /мес.
                                          1/14
                                          2-к, Фрунзенская набережная, 52 Показать на карте
                                          Ленинский проспект, 13 мин
                                          Москва
                                          БЕЗ КОМИССИИ, ОТ СОБСТВЕННИКА! welcome!Агентам просьба не беспокоить, в помощи не нуждаюсь! Дублирование объявления отслеживается и блокируется.квартира с ВИДОМ НА НАБЕРЕЖНУЮ! сдача строго ОТ ГОДА!сдаю евродвушку, в отличном состоянии, дизайнерский ремонт.сталинский дом на набережной, бесценный вид из окна: все окна выходят на реку и нескучный сад (7й этаж из 9).высокие потолки: 3.2 м, паркет мербау, посудомоечная машина, стиральная машина, кондиционер, 2 гардеробных, обустроенная кухня, новый смарт-TV, абсолютно новая мебель, новый ортопедический матрас.Квартира очень тёплая, с хорошей энергетикой. Спокойные соседи, с улицы нет шума.Есть пассажирский лифт.парковка стихийная во дворе, въезд через шлагбаум (при желании можно сделать доступ)сдавать буду строго от года (лучше - дольше)отдам предпочтение мужчине или молодой паре, без детей и животных, некурящим, адекватным и чистоплотным )оплата в месяц: 220К + ЖКУ (+ залог за 1 месяц)Оплата за несколько месяцев вперёд будет плюсом.Готова к показу.Предоплата за 1 месяцЗалог 220 000 ₽
                                          52 м2
                                          7 / 9 этаж
                                          Кирпич
                                          • Показать контакты
                                          • Добавить в избранное
                                          52 м2
                                          7 / 9 этаж
                                          Кирпич
                                          220 000 /мес.
                                            1/26
                                            2-к, Мельникова, 24 Показать на карте
                                            Москва
                                            Сдаётся от собственника уютная 2комнатная квартира со свежим ремонтом — ул. Мельникова, д. 24, МоскваОсновные параметры:Адрес: Москва, ул. Мельникова, д. 24.Тип: 2комнатная квартира.Этаж: 1 / 7.Площадь: 43 м², в т.ч. спальня — 19 м², зал — 14 м².Санузел: совмещённый.Что вас ждёт внутри:Свежий современный ремонт — всё выглядит аккуратно и по домашнему уютно, ничего не требует доработок.Полностью меблирована для комфортного проживания. При наличии собственной мебели готовы обсудить вывоз части или всей мебели при долгосрочной аренде.Вся необходимая техника в наличии:стиральная машинка,холодильник,микроволновка,газовая плита,телевизор,кондиционер,пылесос,утюг.Светлая кухня с обеденной зоной.Уютная гостиная и изолированная спальня.Чистый и аккуратный санузел.Преимущества расположения:Удобная транспортная доступность: пешая доступность до станций метро Пролетарская, Крестьянская застава и Дубровка / остановки общественного транспорта трамвай/автобус в 1 минуте.В минуте от дома - магазины, аптеки, кафе, детские сады и школы и пункты выдачи заказов озон, яндекс, вб.Рядом — парки и зоны для прогулок, крутицкое подворье, в сентябре откроется прогулочная зона вдоль Москва-реки по Крутицкой набережной.Подъезд чистый, соседи спокойные.Условия аренды:Срок: долгосрочная и среднесрочная аренда (от 3 месяцев и более).Оплата для срока от 3 до 6 мес: 85 тыс. руб./мес. + интернет и коммунальные платежи (по счётчикам).Оплата для срока от 12 мес: 80 тыс. руб./мес. + интернет и коммунальные платежи (по счётчикам).Залог: 80 тыс руб. (возможно обсуждение дробления на 2 месяца).Просмотр: в удобное для вас время по предварительной договорённости. Специальное предложение:При долгосрочной аренде каждый 12й месяц бесплатно.Звоните прямо сейчас! Отвечу на все вопросы, организую оперативный показ.Жду вас на просмотре — эта квартира готова стать вашим новым домом!Предоплата за 1 месяцЗалог 80 000 ₽
                                            42 м2
                                            1 / 8 этаж
                                            Кирпич
                                            • Показать контакты
                                            • Добавить в избранное
                                            42 м2
                                            1 / 8 этаж
                                            Кирпич
                                            85 000 /мес.
                                              1/8
                                              2-к, Обручева, 6 Показать на карте
                                              Москва
                                              Сдается уютная двухкомнатная квартира на 18 этаже современного дома 2007 года постройки. Общая площадь составляет 52 кв. м, высота потолков — 2.7 метра. Окна выходят как на улицу, так и во двор, поэтому в квартире всегда светло и тихо. Дом оборудован двумя пассажирскими и одним грузовым лифтами, а также мусоропроводом.В квартире сделан косметический ремонт. В вашем распоряжении будет вся необходимая техника: холодильник и стиральная машина. Просторная ванная комната оборудована ванной. Два балкона предоставляют дополнительное пространство для отдыха или хранения вещей.Дом находится в районе с развитой инфраструктурой. В пешей доступности расположены школы, детские сады, клиники и разнообразные магазины. До станции метро Новаторская можно дойти за 19 минут. Наземная парковка позволит без проблем найти место для вашего автомобиля.Условия аренды: заключение договора напрямую с собственником. Возможна аренда на длительный срок. Обременений на квартиру нет. Комиссия отсутствует, залог обсуждается индивидуально.Не упустите возможность снять эту замечательную квартиру! Звоните и записывайтесь на просмотр. Мы будем рады ответить на все ваши вопросы.Предоплата за 1 месяцЗалог 75 000 ₽
                                              52 м2
                                              18 / 21 этаж
                                              Кирпич - монолит
                                              • Показать контакты
                                              • Добавить в избранное
                                              52 м2
                                              18 / 21 этаж
                                              Кирпич - монолит
                                              75 000 /мес.
                                                1/9
                                                2-к, Кировоградская, 22 корп. 2 Показать на карте
                                                Москва
                                                СДАЕТСЯ ОТ СОБСТВЕННИКА! 2-уровневые апартаменты , есть дополнительно 2 места в подземном паркинге (+10к). Элитный дом, закрытая территория, охрана, детская площадка во дворе. Прямой выход в парк. 1 уровень: студия, санузел, холл2 уровень спальня, санузел, гардеробная комната Имеется вся необходимая для проживания мебель и новая бытовая техника (холодильник, стиральная машина, сушильная машина, варочная панель, духовой шкаф, посудомойка, СВЧ, вытяжка, водонагреватель).Не подойдёт жильцам с маленькми детьми из-за лестницы (на фото)Сдаётся аккуратным людям, строго без животных и вредных привычек. Рядом метро Пражская, ТРЦ Columbus, парк, автобусная остановка, магазины и тд. Цена + ком услуги. СобственникПредоплата за 1 месяцЗалог 50 000 ₽
                                                45 м2
                                                1 / 24 этаж
                                                Кирпич - монолит
                                                • Показать контакты
                                                • Добавить в избранное
                                                45 м2
                                                1 / 24 этаж
                                                Кирпич - монолит
                                                75 000 /мес.
                                                  1/9
                                                  2-к, Академика Янгеля, 1 корп. 1 Показать на карте
                                                  Москва
                                                  Сдаётся просторная 2-комнатная квартира площадью 63 кв. м на 5 этаже 22-этажного дома. Дом монолитный, построен в 2013 году. Высота потолков — 2.9 метра. Удобное местоположение: всего 3 минуты пешком до метро. Квартира с косметическим ремонтом, готова к проживанию. В комнатах и на кухне есть необходимая мебель. Из техники: телевизор, стиральная машина и холодильник. Ванная комната оборудована ванной. Окна выходят как во двор, так и на улицу, что позволяет насладиться видом с двух лоджий.Дом ухоженный, с двумя пассажирскими и одним грузовым лифтом. Для удобства жильцов предусмотрен пандус. В шаговой доступности находятся школы, детские сады, клиники и магазины — всё необходимое для комфортной жизни.Условия аренды: договор заключается напрямую с собственником. Предоплата, залог и комиссии обсуждаются при встрече. Квартира подходит для проживания семьи или пары. Приглашаем вас на просмотр, чтобы вы могли лично оценить все преимущества этого уютного и комфортного жилья. Звоните и записывайтесь на удобное для вас время!Предоплата за 1 месяцЗалог 80 000 ₽
                                                  65 м2
                                                  5 / 22 этаж
                                                  Монолит
                                                  • Показать контакты
                                                  • Добавить в избранное
                                                  65 м2
                                                  5 / 22 этаж
                                                  Монолит
                                                  85 000 /мес.
                                                    • В начало
                                                    • 3
                                                    • 4
                                                    • 5
                                                    • 6
                                                    • 7
                                                    • Следующая
                                                    Распечатать
                                                    Аренда двухкомнатных квартир в Москве
                                                    • по районам
                                                    • Замоскворечье
                                                    • Тверской
                                                    • Хамовники
                                                    • Войковский
                                                    • Головинский
                                                    • Молжаниновский
                                                    • Алексеевский
                                                    • Марфино
                                                    • Свиблово
                                                    • Вешняки
                                                    • Измайлово
                                                    • Перово
                                                    • Капотня
                                                    • Лефортово
                                                    • Печатники
                                                    • Братеево
                                                    • Нагорный
                                                    • Чертаново Центральное
                                                    • Котловка
                                                    • Ясенево
                                                    • Можайский
                                                    • Ново-Переделкино
                                                    • Тропарёво-Никулино
                                                    • Фили-Давыдково
                                                    • Строгино
                                                    • Старое Крюково
                                                    • Красносельский
                                                    • Якиманка
                                                    • Дмитровский
                                                    • Савёловский
                                                    • Алтуфьевский
                                                    • Марьина Роща
                                                    • Северный
                                                    • Северное Медведково
                                                    • Восточный
                                                    • Косино-Ухтомский
                                                    • Преображенское
                                                    • Северное Измайлово
                                                    • Кузьминки
                                                    • Люблино
                                                    • Рязанский
                                                    • Даниловский
                                                    • Орехово-Борисово Северное
                                                    • Чертаново Южное
                                                    • Ломоносовский
                                                    • Северное Бутово
                                                    • Внуково
                                                    • Очаково-Матвеевское
                                                    • Куркино
                                                    • Хорошёво-Мнёвники
                                                    • Силино
                                                    • Мещанский
                                                    • Аэропорт
                                                    • Западное Дегунино
                                                    • Сокол
                                                    • Бабушкинский
                                                    • Бутырский
                                                    • Останкинский
                                                    • Южное Медведково
                                                    • Восточное Измайлово
                                                    • Метрогородок
                                                    • Соколиная Гора
                                                    • Марьино
                                                    • Текстильщики
                                                    • Донской
                                                    • Орехово-Борисово Южное
                                                    • Академический
                                                    • Гагаринский
                                                    • Обручевский
                                                    • Тёплый Стан
                                                    • Дорогомилово
                                                    • Проспект Вернадского
                                                    • Митино
                                                    • Щукино
                                                    • Крюково
                                                    • Арбат
                                                    • Пресненский
                                                    • Беговой
                                                    • Коптево
                                                    • Тимирязевский
                                                    • Ховрино
                                                    • Бибирево
                                                    • Лианозово
                                                    • Отрадное
                                                    • Ярославский
                                                    • Гольяново
                                                    • Новогиреево
                                                    • Сокольники
                                                    • Некрасовка
                                                    • Южнопортовый
                                                    • Зябликово
                                                    • Нагатино-Садовники
                                                    • Царицыно
                                                    • Зюзино
                                                    • Черёмушки
                                                    • Крылатское
                                                    • Раменки
                                                    • Покровское-Стрешнево
                                                    • Южное Тушино
                                                    • Матушкино
                                                    • Басманный
                                                    • Таганский
                                                    • Бескудниковский
                                                    • Восточное Дегунино
                                                    • Левобережный
                                                    • Хорошёвский
                                                    • Лосиноостровский
                                                    • Ростокино
                                                    • Богородское
                                                    • Ивановское
                                                    • Новокосино
                                                    • Выхино-Жулебино
                                                    • Нижегородский
                                                    • Бирюлёво Восточное
                                                    • Бирюлёво Западное
                                                    • Москворечье-Сабурово
                                                    • Нагатинский Затон
                                                    • Чертаново Северное
                                                    • Коньково
                                                    • Южное Бутово
                                                    • Кунцево
                                                    • Солнцево
                                                    • Филёвский Парк
                                                    • Северное Тушино
                                                    • Савёлки
                                                    • 10-й
                                                    • 11-й
                                                    • 12-й
                                                    • 14-й
                                                    • 15-й
                                                    • 16-й
                                                    • 17-й
                                                    • 18-й
                                                    • 19-й
                                                    • 2-й
                                                    • 20-й
                                                    • 21-й
                                                    • 22-й
                                                    • 23-й
                                                    • 3-й
                                                    • 4-й
                                                    • 5-й
                                                    • 6-й
                                                    • 7-й
                                                    • 8-й
                                                    • 9-й
                                                    • Внуковское
                                                    • Вороновское
                                                    • Воскресенское
                                                    • Восточный округ
                                                    • Город Зеленоград округ
                                                    • Град Московский
                                                    • Десёновское
                                                    • Западный округ
                                                    • Киевский
                                                    • Клёновское
                                                    • Кокошкино
                                                    • Краснопахорское
                                                    • Марушкинское
                                                    • Михайлово-Ярцевское
                                                    • Московский
                                                    • Московский
                                                    • Мосрентген
                                                    • Новая Москва
                                                    • Новомосковский округ
                                                    • Новофёдоровское
                                                    • Панфиловский
                                                    • Первомайское
                                                    • Первый Московский Город-Парк
                                                    • Роговское
                                                    • Рязановское
                                                    • Северный округ
                                                    • Северо-Восточный округ
                                                    • Северо-Западный округ
                                                    • Сосенское
                                                    • Троицкий округ
                                                    • Филимонковское
                                                    • Центральный округ
                                                    • Щаповское
                                                    • Щербинка
                                                    • Юго-Восточный округ
                                                    • Юго-Западный округ
                                                    • Южный округ
                                                    • по метро
                                                    • Авиамоторная
                                                    • Автозаводская
                                                    • Академическая
                                                    • Александровский сад
                                                    • Алексеевская
                                                    • Алтуфьево
                                                    • Аннино
                                                    • Арбатская
                                                    • Аэропорт
                                                    • Бабушкинская
                                                    • Багратионовская
                                                    • Баррикадная
                                                    • Бауманская
                                                    • Беговая
                                                    • Белорусская
                                                    • Беляево
                                                    • Бибирево
                                                    • Библиотека им. Ленина
                                                    • Новоясеневская
                                                    • Боровицкая
                                                    • Ботанический сад
                                                    • Братиславская
                                                    • Бульвар Адмирала Ушакова
                                                    • Бульвар Дмитрия Донского
                                                    • Бунинская аллея
                                                    • Варшавская
                                                    • ВДНХ
                                                    • Владыкино
                                                    • Водный стадион
                                                    • Войковская
                                                    • Волгоградский проспект
                                                    • Волжская
                                                    • Воробьевы горы
                                                    • Выхино
                                                    • Выставочная
                                                    • Динамо
                                                    • Дмитровская
                                                    • Добрынинская
                                                    • Домодедовская
                                                    • Дубровка
                                                    • Измайловская
                                                    • Калужская
                                                    • Кантемировская
                                                    • Каховская
                                                    • Каширская
                                                    • Киевская
                                                    • Китай-город
                                                    • Кожуховская
                                                    • Коломенская
                                                    • Комсомольская
                                                    • Коньково
                                                    • Красногвардейская
                                                    • Красносельская
                                                    • Красные ворота
                                                    • Крестьянская застава
                                                    • Кропоткинская
                                                    • Крылатское
                                                    • Кузнецкий мост
                                                    • Кузьминки
                                                    • Кунцевская
                                                    • Курская
                                                    • Кутузовская
                                                    • Ленинский проспект
                                                    • Лубянка
                                                    • Люблино
                                                    • Марксистская
                                                    • Марьино
                                                    • Маяковская
                                                    • Медведково
                                                    • Международная
                                                    • Менделеевская
                                                    • Молодежная
                                                    • Нагатинская
                                                    • Нагорная
                                                    • Нахимовский проспект
                                                    • Новогиреево
                                                    • Новокузнецкая
                                                    • Новослободская
                                                    • Новые Черемушки
                                                    • Октябрьская
                                                    • Октябрьское поле
                                                    • Орехово
                                                    • Отрадное
                                                    • Охотный ряд
                                                    • Павелецкая
                                                    • Парк Культуры
                                                    • Парк Победы
                                                    • Партизанская
                                                    • Первомайская
                                                    • Перово
                                                    • Петровско-Разумовская
                                                    • Печатники
                                                    • Пионерская
                                                    • Планерная
                                                    • Площадь Ильича
                                                    • Площадь Революции
                                                    • Полежаевская
                                                    • Полянка
                                                    • Пражская
                                                    • Преображенская площадь
                                                    • Пролетарская
                                                    • Проспект Вернадского
                                                    • Проспект Мира
                                                    • Профсоюзная
                                                    • Пушкинская
                                                    • Речной вокзал
                                                    • Рижская
                                                    • Римская
                                                    • Рязанский проспект
                                                    • Савеловская
                                                    • Свиблово
                                                    • Севастопольская
                                                    • Семеновская
                                                    • Серпуховская
                                                    • Смоленская
                                                    • Сокол
                                                    • Сокольники
                                                    • Спортивная
                                                    • Сретенский бульвар
                                                    • Студенческая
                                                    • Сухаревская
                                                    • Сходненская
                                                    • Таганская
                                                    • Тверская
                                                    • Театральная
                                                    • Текстильщики
                                                    • Теплый Стан
                                                    • Тимирязевская
                                                    • Третьяковская
                                                    • Трубная
                                                    • Тульская
                                                    • Тургеневская
                                                    • Тушинская
                                                    • Улица 1905 года
                                                    • Улица Академика Янгеля
                                                    • Улица Горчакова
                                                    • Бульвар Рокоссовского
                                                    • Улица Скобелевская
                                                    • Улица Старокачаловская
                                                    • Университет
                                                    • Филевский парк
                                                    • Фили
                                                    • Фрунзенская
                                                    • Царицыно
                                                    • Цветной бульвар
                                                    • Черкизовская
                                                    • Чертановская
                                                    • Чеховская
                                                    • Чистые пруды
                                                    • Чкаловская
                                                    • Шаболовская
                                                    • Шоссе Энтузиастов
                                                    • Щелковская
                                                    • Щукинская
                                                    • Электрозаводская
                                                    • Юго-Западная
                                                    • Южная
                                                    • Ясенево
                                                    • Краснопресненская
                                                    • Строгино
                                                    • Славянский бульвар
                                                    • Мякинино
                                                    • Волоколамская
                                                    • Митино
                                                    • Марьина роща
                                                    • Достоевская
                                                    • Шипиловская
                                                    • Зябликово
                                                    • Борисово
                                                    • Новокосино
                                                    • Пятницкое шоссе
                                                    • Алма-Атинская
                                                    • Жулебино
                                                    • Лермонтовский проспект
                                                    • Деловой центр
                                                    • Лесопарковая
                                                    • Битцевский парк
                                                    • Спартак
                                                    • Улица Сергея Эйзенштейна
                                                    • Выставочный центр
                                                    • Улица Академика Королева
                                                    • Телецентр
                                                    • Улица Милашенкова
                                                    • Тропарево
                                                    • Котельники
                                                    • Технопарк
                                                    • Румянцево
                                                    • Саларьево
                                                    • Фонвизинская
                                                    • Бутырская
                                                    • Хорошёво
                                                    • Зорге
                                                    • Панфиловская
                                                    • Стрешнево
                                                    • Балтийская
                                                    • Коптево
                                                    • Лихоборы
                                                    • Окружная
                                                    • Ростокино
                                                    • Белокаменная

                                                    Вместе с этим также ищут:

                                                    Аренда комнат без посредников в Москве Аренда комнат в Москве на длительный срок Аренда квартир без посредников в Москве Аренда квартир в Москве на длительный срок Снять квартиру посуточно в Москве Снять комнату посуточно в Москве Снять гараж в Москве

                                                    🏠 Как снять двухкомнатную квартиру в Москве на N1?

                                                    • ✔ В поисках объявления об аренде или сдаче квартир в Москве?
                                                    • ✔ На N1 размещены 712 квартир
                                                    • ✔ Чтобы снять или сдать недвижимость, воспользуйтесь формой поиска, фильтрами или быстрыми ссылками.

                                                    💸 Сколько стоит двухкомнатная квартира в Москве?

                                                    • 🟢 Средняя цена аренды двухкомнатных квартир - 98,68 тыс ₽
                                                    • 🟢 Минимальная стоимость за 1 м2: 1,92 тыс ₽

                                                    📚 Какая площадь двухкомнатных квартир?

                                                    • Наибольшая площадь: 110 м²
                                                    • Минимальная площадь: 27 м²