Коттедж, Березка-2 садовое товарищество, 27 Показать на карте
20262 кв-л
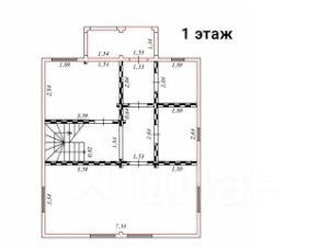
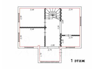
Продаётся коттедж 133 кв.м на участке 7,5 соток с лесными деревьями!Уютный, клубный посёлок в Дубовой роще!Всего 32 домовладения, выполненных в едином архитектурном стиле.Планировка дома:1 этаж: кухня-гостиная с панорамным окном и выходом на веранду, санузел, спальня или кабинет, бойлерная.2 этаж: 3 спальни, санузел и балкон.Материал стен газобетон облицованный кирпичом (баварская кладка).Перекрытия монолитные.Фундамент монолитная плита.Все коммуникации централизованные и заведены в дом: газ, электричество 15 кВт, водоснабжение и канализация, интернет оптоволокно. Лес и озёра для купания в шаговой доступности.В посёлке планируется своя детская площадка, несколько скверов. Так же и для наших жителей обустроена прогулочная-парковая зона и озеро. Спортивная площадка, футбольное поле, теннисный корд, беседки на территории поселка Спортвилль.Рядом Сорочаны, Волен, Х-LAND, рестораны, гольф клубы, картодром, конюшни.В 3 км от посёлка детский сад и школа Позитив.Прекрасное место, как для постоянного места жительства, так и для дачного отдыха!Прописка! Льготная и IT ипотека! Рассрочка!
133 м2
2 этажа
Кирпич
- Показать контакты
- Добавить в избранное
133 м2
2 этажа
Кирпич
15 500 000
116 541 /м2
