Дом, Лесная Сказка Показать на карте
Аусбург дп
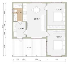
Представляем вашему вниманию дом ''Виктория'' с тремя изолированными спальнями. Дом соответствует условиям льготного ипотечного кредитования, и мы готовы оказать поддержку в процессе одобрения ипотеки. Идеальное решение для покупки по СЕМЕЙНОЙ ИПОТЕКЕ, включая использование материнского капитала.Дом построен для круглогодичного проживания, надежный. С гарантией от застройщика. Топится водяным теплым полом с регулируемыми контурами на каждое помещение. Отопление в зимний месяц выходит 7-9 тысяч рублей (есть платежки от жителей).Параметры дома:110 м2 по пятну застройки3 изолированные спальни от 10,9 до 12,1 м2. Терраса и панорамное остеклениеУютный формат дома в Скандинавском стиле ФАХВЕРКФундамент-Железобетонные сваиДом подходит для круглогодичного проживанияКровля GrandLine со снегозадержателями и металлической ливневой системойДоска пропитана современной и экологичной огне-био защитойДом будет сдан в формате под ключ!В доме сейчас ведутся отделочные работы - через 3 месяца дом будет сдан ''под ключ'' - в объявлении указана стоимость дома ''под ключ'' вместе с земельным участком! Фото, выложенные в объявлении, это пример отделки дома, сданного покупателю пару месяцев назад. В 9 минутах от дома находится горнолыжный курорт Сорочаны и песчаный пляж. Сам поселок со всех сторон окружен вековыми хвойными лесами гослесфонда.Чтобы узнать больше о доме, или записаться на просмотр, пишите нам в чат или звоните по номеру. С радостью ответим на ваши вопросы.
110 м2
1 этаж
- Показать контакты
- Добавить в избранное
110 м2
1 этаж
10 500 000
95 455 /м2
