Дом, Бочкино Показать на карте
Бочкино
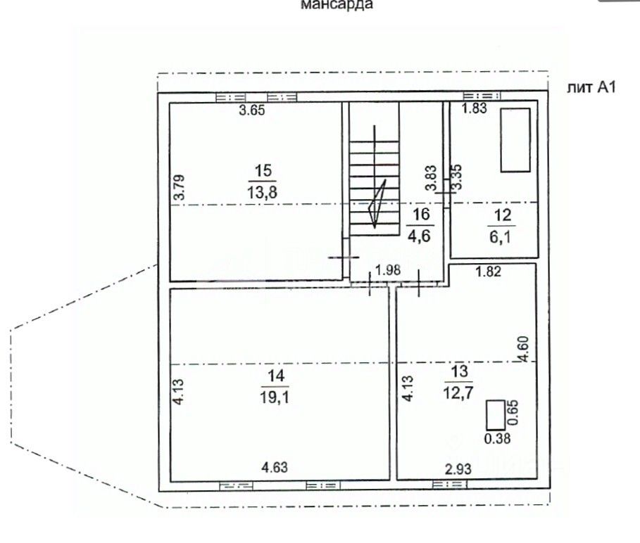
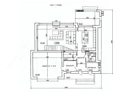
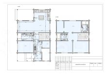
Лот: 159710 Продается двухэтажный коттедж в КП ''Art House'' общей площадью 191.9 м2 на участке 16 соток. Проект Art House - дом с панорамными окнами (с двухкамерным стеклопакетом и пятикамерным профилем). Функциональной планировкой предусмотрены: кухня-гостиная со вторым светом и большой террасой, три спальни, два санузла, гардеробные, кладовая, холл, тамбур, технические помещения. Дом уже построен, выполнена внешняя отделка имитацией бруса. Технология постройки дома - микс канадско-финских технологий каркасного домостроения, по улучшенному индивидуальному проекту с использованием качественных стройматериалов, обеспечивающих высокие показатели ветрозащиты, гидроизоляции и сохранения оптимального микроклимата. Произведено дополнительное утепление металлической клик-фальцевой кровли. Земельный участок огорожен, имеет откатные ворота и калитку. К дому организован асфальтированный подъезд шириной 5м. Центральные коммуникации: электроснабжение 15кВт, водоснабжение, высокоскоростной Интернет с подключением по оптоволоконному кабелю. КП Арт Хаус (Art House) находится в 45 минутах от МКАД по Новорижскому шоссе, в окружении густого натурального леса и живописных озер поблизости. На территории поселка будут построены детские и спортивные площадки, а после заселения поселка планируется открытие банного комплекса, центр спорта и туризма. При строительстве детских игровых комплексов и спортивных площадок используются только натуральные материалы: древесина, металл, природный камень, мульча, различные канатные и веревочные изделия. Здесь будет универсальная спортивная площадка для игры в бадминтон, волейбол, баскетбол.
191 м2
2 этажа
- Показать контакты
- Добавить в избранное
191 м2
2 этажа
12 540 000
65 347 /м2
