3-к, Столярный переулок, 3 корп. 34 Показать на карте
Москва
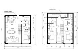
Лот: 83807. В продаже апартамент свободной планировки в уникальном клубном квартале на Красной Пресне. Это двухуровневое пространство, где современный дизайн встречается с историей, а панорамные окна наполняют квартиры светом и зеленью.Планировка апартамента:1 уровень:- просторная гостиная с зоной кухни и столовой,- гардеробная,- гостевой санузел,- балкон.2 уровень:- 2 спальни с гардеробными,- ванная комната,- второй балкон.Высота потолков: 1 уровень - 2,70 м, 2 уровень - 3,00 м. Из окон открывается вид на тихий зелёный сквер, создавая атмосферу спокойствия и уединения.Клубный квартал ''Рассвет Loft Studio'' расположился на территории исторической мебельной фабрики ''Мюръ и Мерилиз'', созданной шотландскими предпринимателями начала XX века, авторами неоготического здания ЦУМа на Петровке. Архитектура комплекса воспроизводит европейский квартальный стиль: фасад будто собран из нескольких слегка отличающихся ''домов'', каждый сегмент с уникальным завершением на мансардном этаже, создавая живописный силуэт и гармонию старой и новой Москвы.Инфраструктура и территория: огороженная и благоустроенная территория с ландшафтным дизайном, уютные зоны отдыха для жителей, удобный доступ к Садовому кольцу, ММДЦ ''Москва-Сити'' и всей инфраструктуре Пресненского района.''Рассвет Loft Studio'' - это редкая возможность создать свой идеальный интерьер в историческом, архитектурно выразительном клубном доме, сочетающем стиль, свет и приватность в сердце Москвы.Для вашего комфорта предусмотрены подземный и наземный паркинг.Здравствуйте, я Михаил Федоров, брокер международной консалтинговой компании NF GROUP.Подробно расскажу об этой квартире и районе, оперативно организую просмотр и согласую лучшие условия.Участник ассоциации агентств элитной недвижимости AREA
157 м2
4 / 5 этаж
Монолит
- Показать контакты
- Добавить в избранное
157 м2
4 / 5 этаж
Монолит
89 000 000
566 879 /м2
