1-к, Рязанский проспект, 2/1 корп. 4 Показать на карте
Москва
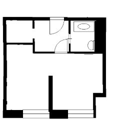
Id 63666. Квартира с дизайнерским ремонтом и огромной кухней-гостиной в ЖК ''SREDA'' у метро ''Нижегородская''.Перед вами не просто евро-двушка, а продуманное пространство для жизни в одном из самых динамичных районов Москвы. Квартира площадью 37,2 квадратных метра расположена на первом этаже монолитного девятиэтажного дома 2020 года постройки. Главная особенность объекта, которая выделяет его среди предложений на рынке, — это кухня-гостиная площадью 15 квадратных метров. Это полноценное пространство для приема гостей, семейных ужинов или обустройства полноценной рабочей зоны без ущерба для спального места. Жилая комната площадью 17 метров предлагает свободу для реализации любых дизайнерских решений.Квартира продается с готовым дизайнерским ремонтом, который выполнен в современном стиле и не требует дополнительных вложений. Внутри установлена качественная мебель, включая кухонный гарнитур и встроенную технику, а также присутствует сплит-система для поддержания комфортного микроклимата в любое время года. Высота потолков 2,8 метра создает ощущение воздуха и простора. Совмещенный санузел компактен и функционален. Окна выходят во двор, что гарантирует тишину и уют, вдали от шума оживленного проспекта. В доме один пассажирский лифт и открытая парковка для жильцов.Жилой комплекс ''SREDA'' (среда) построен по монолитной технологии, что обеспечивает отличную шумоизоляцию и надежность конструкций. Расположение на Рязанском проспекте открывает доступ к ключевым магистралям города, включая ТТК и МКАД. Пешком за 11 минут вы доходите до станции метро, что является отличным показателем транспортной доступности. В шаговой доступности находятся крупные торговые центры, фитнес-клубы, отделения банков и сетевые супермаркеты. Этот объект идеально подходит для нескольких сценариев. Для молодой пары или специалиста, ценящего свое время и комфорт, — это готовая квартира с дизайном, куда можно заезжать сразу после покупки. Для инвестора — это ликвидный актив в новостройке рядом с метро, который будет востребован на рынке аренды. Благодаря разрешению на ипотеку, вы можете воспользоваться льготными программами кредитования, а первый этаж исключает проблемы с лифтом и соседями снизу. Условия сделки — свободная продажа, что гарантирует быстрый выход на сделку без обременений.Не упустите возможность стать обладателем стильной и функциональной квартиры. Запишитесь на просмотр уже сегодня, чтобы лично оценить качество ремонта и удобство планировки. Это предложение актуально, и такие объекты редко задерживаются на рынке. Позвоните, чтобы согласовать время визита.
37 м2
1 / 9 этаж
Монолит
- Показать контакты
- Добавить в избранное
37 м2
1 / 9 этаж
Монолит
20 500 000
551 075 /м2
