2-к, Советской Армии, 13 Показать на карте
Рижская, 15 мин
Москва
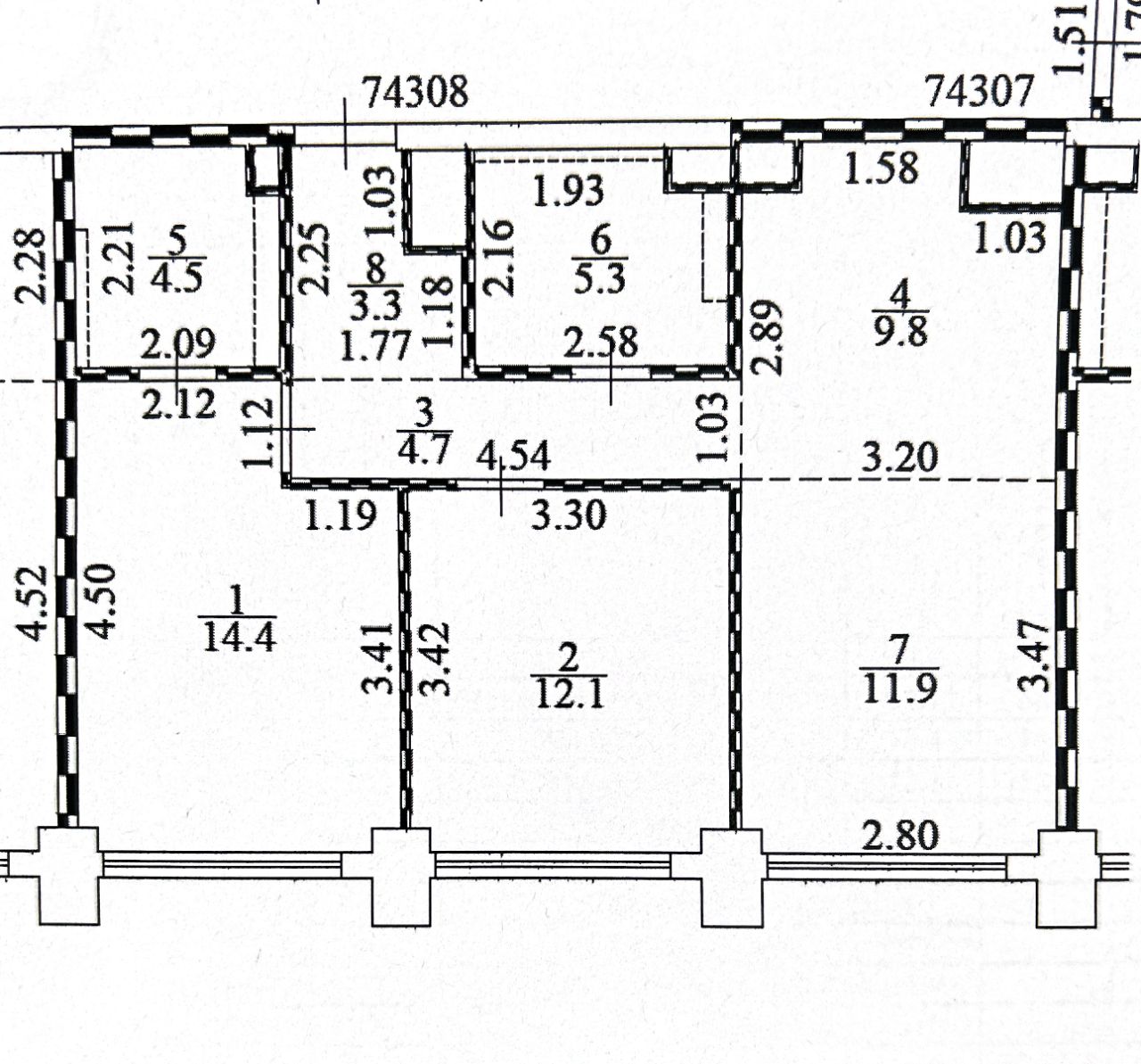
Арт. 134151934 Уникальное предложение для ценителей тихого центра - аналогов в Москве очень немного!Обратите внимание, что в этом доме квартиры не выставляются в продажу уже несколько лет.Мы продаем 2-х комнатную квартиру не потому, что отсутствует комфорт, а так складывается семейная необходимость.О квартире:Высота потолков 3.20 м.Год постройки 1958.Тип дома Кирпичный.Тип перекрытий Железобетонные.Двор огорожен, на въездах шлагбаумы.Тихий двор, хорошие соседи, автомобильная парковка под шлагбаум возле дома.Квартира подойдет для молодой семьи с детьми, студентов, а так же арендного бизнеса.До метро Марьина Роща 6 минут пешкомЧерез дорогу Фестивальный парк площадью 10 Га.Два окна во двор, одно на дорогу и парк.В десять минутах ходьбы Екатерининский парк с Большим Екатерининским прудом.Школы, детские сады, магазины все в шаговой доступности.Один взрослый собственник.Свободная продажа.С момента постройки дома квартира в одной семье.Последний ремонт был в 90-х, поэтому квартира под ремонт.Показываем в удобное для покупателя время. Звоните, ответим на все вопросы.
55 м2
3 / 6 этаж
Кирпич
- Показать контакты
- Добавить в избранное
55 м2
3 / 6 этаж
Кирпич
25 500 000
456 172 /м2
