2-к, Шмитовский проезд, 39 корп. 2 Показать на карте
Выставочная, 13 мин
Москва
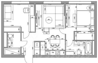
Квартира ЕВРО-3 с просторной кухней-гостиной в малоэтажной секции в ЖК Headliner.ОПИСАНИЕ:- Этаж 8/11- Общая площадь- 85.8 м2-кухня- гостиная - 29 м2-комнаты- 20.74+17.47 м2-прихожая - 6.14 м.,кв-сан.узел 5.99+2.29 м.кв.- Свободная планировкаИНФРАСТРУКТУРА:- Метро 150м.- Очень удобная транспортная развязка на все направления: МЦД ''Текстовая'' с прямым аэро экспрессом до ''Шереметьево'', выезд на набережные Москвы-реки, ТТК, Кутузовский, в центр и область.- На территории комплекса уже открыты и еще откроются свои детские сады, фитнес, медцентр, творческие студии. - На первых этажах магазины, кафе, рестораны, банки, сервисные службы.- Школы: ГБОУ ''Романовская школа'', физико-математическая школа 56 им академика В,А,Легасова, английская школа 1232, две гимназии, музыкальная школа.- Свободная продажа.- Обременений нет.- Возможность приобретения в ипотеку.- Гарантия чистоты и надежности сделки.- Документы готовы к сделке!Квартал жилых небоскребов HEADLINER входит в ТОП-10 самых продаваемых ЖК бизнес-класса Москвы, и признан одним из самых ивестиционно-привлекательных объектов московского региона.Ввод в эксплуатацию корпусов 3-ей очереди запланирован на 4 квартал 2024 года.Расположение, транспортная доступностьМногофункциональный квартал жилых небоскрёбов HEADLINER располагается в престижном Пресненском районе ЦАО Москвы в 2 минутах пешком от станции метро и МЦК ''Шелепиха'', в 450 метрах от делового центра ''Москва-сити''.В 7 минутах пешком находится станция МЦД ''Тестовская'' с прямым аэроэкспрессом до аэропорта ''Шереметьево''.Расположение на пересечении Шмитовского и Мукомольного проезда обеспечивает автомобилистам быстрый выезд на Третье транспортное кольцо, Краснопресненскую набережную, Кутузовский проспект и Большую Филевскую улицу.Инфраструктура:В непосредственной близости расположены лучшие школы ЦАО: ГБОУ ''Романовская школа'', физико-математическая школа 56 им. академика В.А. Легасова, школа с углубленным изучением английского языка 1232 ''На Кутузовском'', две гимназии и несколько общеобразовательных, спортивных и музыкальных школ.В пешей досягаемости - ТРЦ ''Афимолл Сити'', ТРЦ ''Филион'', ТРЦ ''Европейский'', фитнес-клубы World Class, ''Зебра'' и Wellness Club Nebo, отели Sky Moscow и Novotel, Экспоцентр, а также вся инфраструктура ММДЦ ''Москва-Сити''.Рядом находятся парк Причальный и Шелепихинская набережная. За 5-10 минут на автомобиле можно добраться до парков Фили, Красногвардейские пруды, Красная Пресня и парка Победы.Всего 8 минут пути до набережной Тараса Шевченко с живописными видами на Headliner и Деловой центр. Отсюда можно совершать прекрасные велопрогулки в сторону Бережковской и Саввинской набережных. Номер в базе: J59537
85 м2
8 / 11 этаж
- Показать контакты
- Добавить в избранное
85 м2
8 / 11 этаж
34 500 000
402 285 /м2
Новостройка,
дом сдан
дом сдан
