1-к, Новоостаповская, 7 корп. 2 Показать на карте
Волгоградский проспект, 5 мин
Москва
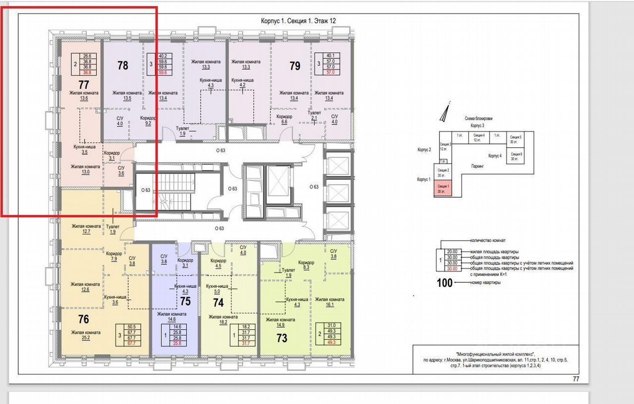
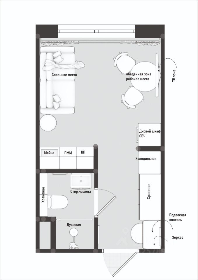
Продаётся 1-комн. квартира площадью 33,7 кв.м на 29 этаже 33 этажного дома (Корпус 1.3, Секция 1) проекта ПИК Первый Дубровский. Светлый просторный подъезд на уровне земли, функциональная планировка, большие окна, c отделкой. Первый Дубровский будет построен в Южнопортовом районе всего в 5 минутах пешком от станции метро ''Волгоградский проспект''. Дорога на автомобиле до Садового кольца займёт 7 минут, а до ТТК - 4 минуты. Проект задуман небольшим и уютным - в нём будет всего 4 корпуса с переменной высотой: 28, 33 и 38 этажей с подземным паркингом. Не территории мы построим детский сад на 150 малышей и школу для 350 учеников. А во дворе - зелёный парк с детскими и спортивными площадками и зонами для отдыха. На первых этажах откроются магазины, кафе и другие сервисы. Южнопортовый район - приятное место для жизни и отдыха. Здесь есть множество детских садов, вузы и школы. Для прогулок подойдут уютные парки и пруды, а для развлечений - парк развлечений ''Остров Мечты'', различные спортивные центры и комплексы. В проекте предусмотрена медленная зона для электросамокатов — с 7 утра до полуночи при въезде на территорию квартала скорость электросамокатов автоматически снижается до 15 км/ч. Артикул 890908 (Застройщик ООО Специализированный застройщик ''ДРСУ-34'')
33 м2
29 / 33 этаж
Монолит
- Показать контакты
- Добавить в избранное
33 м2
29 / 33 этаж
Монолит
21 756 720
645 600 /м2
Новостройка,
дом сдан
дом сдан
