3-к, Староалексеевская, 5а Показать на карте
Алексеевская, 7 мин
Москва
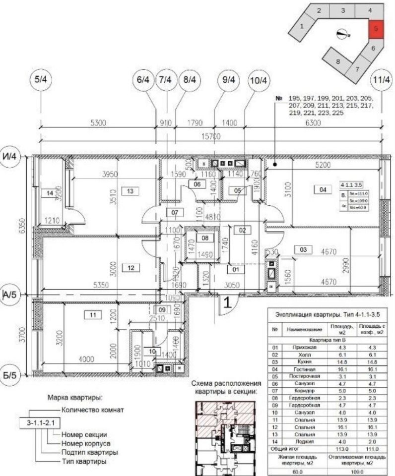
Продаётся квартира в готовом жилом комплексе бизнес-класса ''Лайм'' в 5 минутах ходьбы от ст. метро Алексеевская. Действуют рассрочки, семейная ипотека.Дом сдан!!! Сделка по ДКП, ключи сразу после оплаты!ЖК ''Лайм'' благоустроен и заселен более, чем наполовину. В составе комплекса подземный паркинг, до которого можно спуститься на лифте с любого этажа. Территория полностью огорожена, находится под круглосуточной охраной и видеонаблюдением. Во дворе есть детская площадка для малышей, баскетбольная площадка с трибунами для подростков, а также лаунж-зона с деревянными шезлонгами и столиками для взрослых. В ЖК ''Лайм'' реализована концепция ''двор без машин'', которая делает закрытую прилегающую территорию безопасной. Входные группы расположены на уровне земли для создания безбарьерной среды, что облегчает проезд детских колясок, транспортировку тяжелых грузов и передвижение маломобильных групп граждан. От комплекса до Проспекта Мира всего 3 минуты пешком, до станции метро ''Алексеевская'' 5 минут. Расстояние до ТТК составляет не более 3 километров, до Садового кольца 5.1 км. ''Лайм'' окружает четыре крупных парка ''ВДНХ'', ''Сокольники'', ''Ботанический Сад'', ''Парк Яуза''. Чуть дальше расположен национальный парк ''Лосиный остров''. В шаговой доступности от ЖК четыре школы и гимназии, входящие в рейтинг лучших учебных заведений Москвы, пять детских садов, поликлиники, аптеки, кафе, фитнес-клубы, магазины и другая необходимая инфраструктура.
129 м2
9 / 27 этаж
Монолит
- Показать контакты
- Добавить в избранное
129 м2
9 / 27 этаж
Монолит
47 846 650
370 044 /м2
Новостройка,
дом сдан
дом сдан
