1-к, Автозаводская, 24 Показать на карте
Тульская, 10 мин
Москва
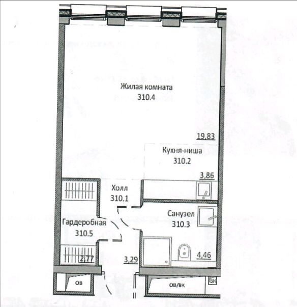
Премиальная студия с видом на Москву-реку. Цена ниже, чем у застройщика!Продаётся студия с отделкой уровня CLEAN и подключенной системой ''умный дом'' в современном жилом комплексе INSIDER. Из трёх панорамных окон открывается вид на Москву-реку — редкая и ценная особенность объекта. Квартира подойдёт тем, кто ищет готовое решение без необходимости делать ремонт: всё уже реализовано по проекту, можно сразу заезжать. Прекрасный вариант как для личного проживания, так и для инвестиций — особенно с учётом привлекательной цены на видовую квартиру, которая ниже, чем у застройщика.КВАРТИРАСтудия находится на пятом этаже, проектная площадь — 34,35 кв.м. Пространство включает кухонную зону, жилую комнату с тремя окнами, совмещённый санузел 4,25 кв.м., прихожую. Потолки - 3 метра. Отделка будет выполнена по стандарту CLEAN: потолки — гипсокартон под окраску или матовое натяжное покрытие с возможностью установки потолочного карниза, стены в комнатах, кухне, прихожей — армирующие обои под покраску, в санузлах — керамическая плитка до потолка. На полу — инженерная или паркетная доска в жилых зонах, плитка в кухне, прихожей и санузле. В санузле установлен тёплый пол. Входная металлическая дверь и внутренние двери выполнены в соответствии с дизайн-проектом.Квартира укомплектована всей необходимой сантехникой: инсталляция с подвесным унитазом, подвесная столешница с раковиной и смесителем, электрический полотенцесушитель. В зависимости от типа помещения — предусмотрена акриловая ванна или душевой поддон с керамической плиткой и стеклянными перегородками. Смонтирована разводка труб ХВС, ГВС и канализации с установкой приборов учёта. Работает система ''умный дом'', включающая датчики движения, сенсоры, домофон и электропитание розеток и освещения. Подключены розетки для электрики, Wi-Fi и освещения, в ванной и санузле установлены точечные светильники. Работает система ''умный дом''.ДОМДом построен по современным стандартам: просторное дизайнерское лобби, благоустроенный зелёный двор, двухуровневый подземный паркинг, скоростные лифты. В доме реализована система приточно-вытяжной вентиляции с механическим побуждением, предусмотрена установка наружных блоков VRF-систем кондиционирования. Остекление окон — алюминиевый профиль с двухкамерными стеклопакетами, которые защищают от шума и сохраняют тепло. В подъезде и на этаже установлены коллекторы с учётом воды и отопления.ИНФРАСТРУКТУРАРазвитая инфраструктура района делает проживание здесь особенно комфортным. В пяти минутах ходьбы от дома будет оборудован причал — оттуда можно за 15 минут добраться на речном транспорте до парка ''Зарядье''. Поблизости расположены крупные торговые центры ''Ривьера'' и ''Ереван Плаза'', Даниловский рынок, ЦСКА Арена, а также кафе, рестораны, фитнес-клубы и всё необходимое для насыщенной городской жизни.Локация отличается высокой транспортной доступностью. Дом находится всего в одной минуте от ТТК, шести минутах от Садового кольца, до станции метро Тульская — 15 минут пешком, до Авт
34 м2
5 / 16 этаж
Монолит
- Показать контакты
- Добавить в избранное
34 м2
5 / 16 этаж
Монолит
16 700 000
486 172 /м2
Новостройка,
I-2026
I-2026
